продам будинок

Київська область Києво-Святошинський район,  село Мила
Показати на карті
73'797 USD
850 за м2
Код: 904708934
К-ть кімнат: 3
Поверх: 2
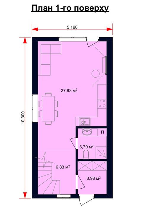
Площа: 86.82 м2
Земельна ділянка: 1.7 сот
оновлено: 22 листопада
Таунхаус 86,82 м2, газове опалення, розтермінування до 24 міс.; Таунхаус площею 86,82 м2., закрита територія. Знаходиться в 15 хвилинах від ст. метро Житомирська в с.Мила. Поруч є вся необхідна інфраструктура: Фора, Мегамаркет, АТБ, школа, дитячий садок, кафе, поліклініка, Нова пошта, салони краси та інше. Поруч розташований новий житловий комплекс Міланж, в якому на першому поверсі також зʼявиться інфраструктура. Зручна транспортна розвʼязка. Ділянка: 1,7 соток Фундамент: збірно-монолітний Матеріал стін: керамоблок Утеплення стін: 150 мм пінополістирол Утеплення даху: 250 мм пінополістирол Вікна: 5-камерні з двокамерним склопакетом з аргоном та напиленням Solar. Висота стелі: 3,15 метра Світло: 8 кВт 3 фази, лічильники день/ніч Опалення: індивідуальне газове Вода: свердловина 85 метрів з фільтрацією Каналізація: центральна Можливе розтермінування до 24 місяців від забудовника або кредит до 7 років від OTP банку. Є таунхауси 122 та 97м2. Сайт: milange.estate