довгострокова оренда квартира
| Код: |
901864147
|
| Поверх: |
12 із 15
|
| Площа: |
60 м2
|
| Кухня: |
17 м2
|
| Ванні кімнати: |
2
|
| оновлено: |
29 жовтня
|
Святошинський; Без комісії. Власник.ЖК"Парковий" Миколи Руденка, 14д, 1-кімн. 60кв.м.; Непосредственно сдаёт ХОЗЯИН. Свободна. Престижный ЖК "Парковый", Миколи Руденка, 14д, в 150 метрах остановка скоростного трамвая №1, Сильпо, АТБ в комплексе.
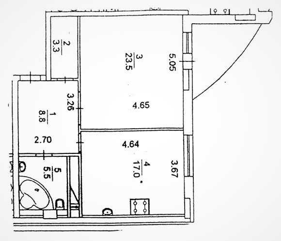
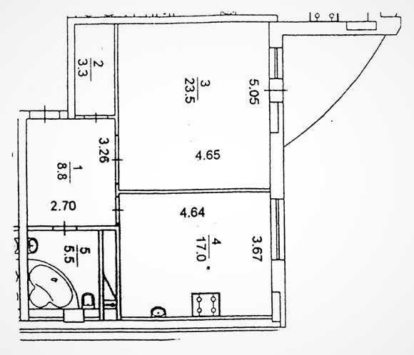
Однокомнатная, раздельная квартира.
Этаж / Этажность :видовая 12 этаж, 15 этажного дома
Площадь (кв. м.) : 60 - общая, 9-холл, 23.5 -комната, 17.0 - кухня-столовая, 4-гардеробная, 7-терраса(лоджия)
Высота потолков : 280 см
Состояние : отличное,
О квартире : стеклопакеты, бронедверь, видовая, утеплённые стены (вентилируемый фасад), подогрев полов, счетчики хол. и гор. воды, счётчик тепла, бойлер, стиралка, кабель-ТВ, интернет, встроенная кухня, двуспальная кровать с ортопедическим матрасом зима-лето, диван-кровать, телевизор, кондиционер, холодильник, кафель в с/у, прихожей и кухне-столовой.
Дом / Серия : индивидуальный
Стены : монолитно-каркасный, кирпич(красный), с утеплением вентилируемым фасадом
В доме (о доме) : лифт, консьерж, кодовый замок, , хорошая транспортная развязка, развитая инфраструктура, тихое место, гостевая стоянка, 1 эт. - нежилые помещения
Примечание : совмещённый с/у, 1 лоджия
Срок сдачи : длительный
Предпочтение соотечественникам: одному человеку, паре, без вредных привычек , без домашних животных, без маленьких детей.