продам будинок

Дніпропетровська область ,  місто Дніпро (Дніпропетровськ)
Показати на карті
159'000 USD
1223 за м2
Код: 888044737
К-ть кімнат: 3
Поверх: 2
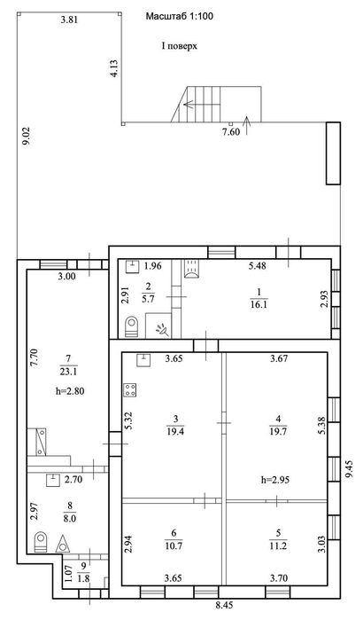
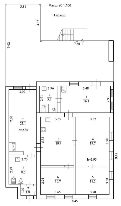
Площа: 130 м2
Земельна ділянка: 10 сот
оновлено: 3 лютого
Індустріальний; Продам будинок 130 м2 м.Дніпро, вул. Кринична, пр. Слобожанський 2хв; ВІД ВЛАСНИКА. Продається будинок в м. Дніпро, вул. Кринична. Повністю укомлектованний меблями і технікою для комфортного проживання. 10 соток / основний будинок / окремий літній будинок / гараж / великий навіс під 2ва авто / великий сад з різноманітними фруктовими деревами, виноградом і грядками з полуницею. * земельна ділянка 10 соток - величезний сад з різноманітними фруктовивми деревеми, зручними грядками і теплицею * житлова площа 1й поверх 130м.кв. / 2й поверх 65м.кв. / окремий капітальний літній будинок + гараж 100м.кв. разом * три житлові кімнати, кабінет, велика кухня-вітальня, два санвузли * комунікації міські: газ, водопровід та електроенергія * 2 ва септики, скважина * опалення: індивідуальне газове - двоконтурний котел - пічь на дровах * по всьому будинку тепла підлога, де є плитка * будинок з товстими стінами із цегли + утеплений пінопластом * будинок капітальний із бетонним перекриттям * ремонт капітальний 2021 року * велика тераса з навісом, може поміститися 2ва авто (виведена розетка під зярядку електро авто) * автоматичні ворота на пульту для заїзду * домофон по відео / відеоспостереження / сигналізація Ну будинок, добудови і земельну ділянку є всі необхідні документи. РІЕЛТОРАМ ПРОХАННЯ НЕ ТУРБУВАТИ.