довгострокова оренда квартира

Одеська область Лиманський район,  село Фонтанка
Показати на карті
700 USD
11 за м2
Код: 904410558
Поверх: 10 із 10
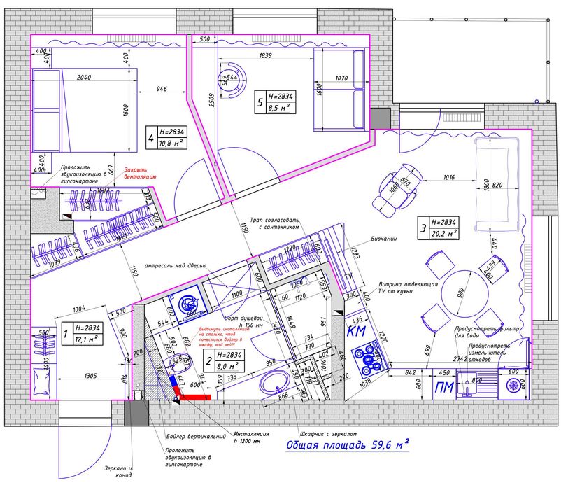
Площа: 60 м2
Кухня: 20 м2
Ванні кімнати: 2
оновлено: 18 листопада
Оренда квартири, Парк Фонтанів, Чехова 2; Квартира з південним сонячним боком Перша оренда Парковочне місце Новий ЖК Поряд ТРЦ РІВ'ЄРА Власник Без комісії Без ріелторів Без тварин