продам квартира

Київська область ,  місто Буча
Показати на карті
53'000 USD
883 за м2
Код: 904349761
Поверх: 3 із 9
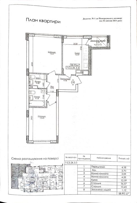
Площа: 60 м2
Кухня: 12.6 м2
Ванні кімнати: 3
оновлено: 20:43
Продам 2 кімнатну квартиру в м. Буча; Без комісії для покупця! Можливо хтось шукає собі житло і наші шляхи перетнуться! Продам 2 кімнатну квартиру в м. Буча ЖК Нова Буча-2, загальна площа 58.95 кв.м., квартира у центрі будинку, 3 поверх, будинок побудований, введення в експлуатацію квітень 2026 року. Є можливість перегляду. Продаж шляхом переуступки за попереднім договором купівлі-продажу, такий правочин економить кошти на оподаткуванні. Нотаріальні послуги за посвідчення договору заміну сторони у договорі 50/50! P.S. щодо співпраці з ріелторами: якщо ваш клієнт шукає квартиру то готова до співпраці, телефонуйте з контактую зі своїм фахівцем! Ваш клієнт сплачує ваші послуги! Тихих ночей! Бережіть себе! Слава Україні! Героям слава! Номер телефону в об'яві зазначений без месенджерів для уникнення зайвих повідомлень на кшталт: пропоную заробіток)))