Aрхів - оголошення нерухомості не активне. Оновлено 9 лютого

схожі активні оголошення за лінком:
продам будинок cмт Гостомель

продам будинок

Київська область Києво-Святошинський район,  cмт Гостомель
Показати на карті
69'000 USD
841 за м2
УкрХата - оголошення нерухомості.
Код: 904276019
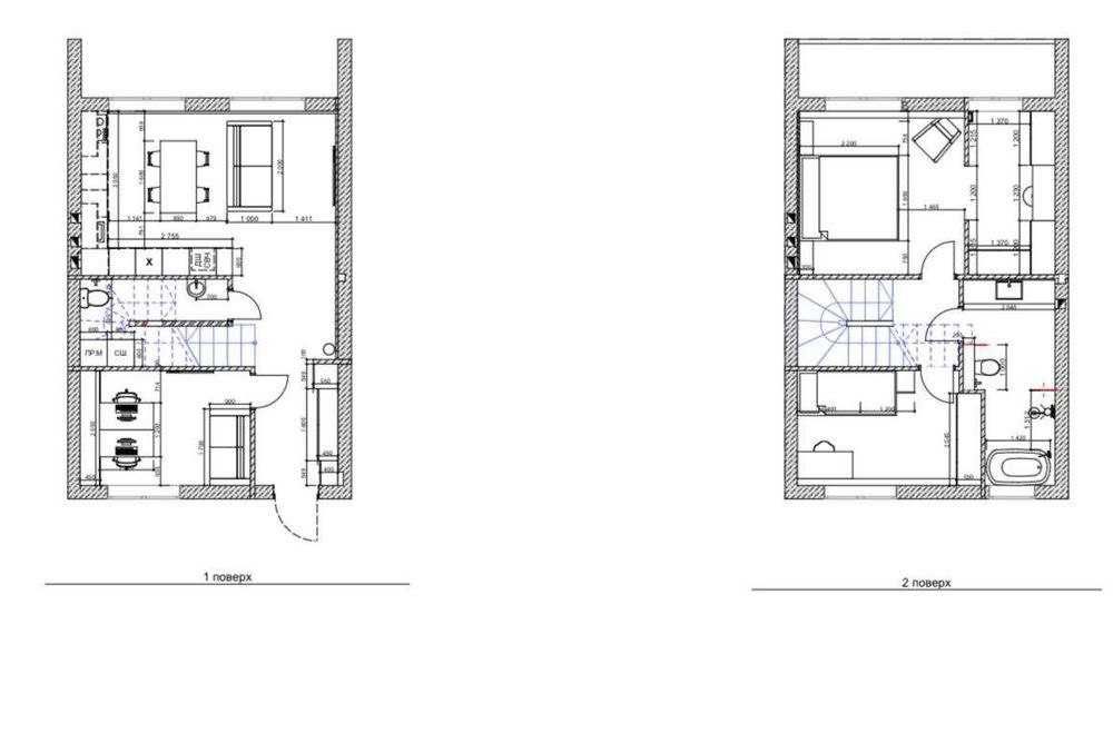
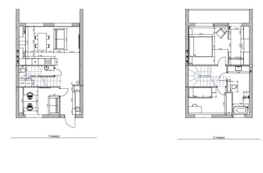
К-ть кімнат: 4
Поверх: 2
Площа: 82 м2
Земельна ділянка: 1.8 сот
оновлено: 9 лютого
Кутовий таунхаус Гостомель з максимальним наповненням від власника; Таунхаус у Гостомелі від власника — виконано більшу частину робіт, готовий до фінішного оздоблення! Продаж терміновий тому вартість повністю порахована лише по тому, що було вкладено ( вартість тауна + собівартість ремонт) без жодних накруток. Власник. Без комісії. Введення в експлуатацію буде оформлене на першого власника або якщо вас цікавить варіант держ програм - можемо ввести в експлуатацію завчасно, треба обговорювати. Пропонуємо до продажу свій кутовий таунхаус площею ** м² від надійного забудовника Scorobud. Планування та ділянка: - Кутове розташування - Власна земельна ділянка: Спереду — * паркомісця. Ззаду — затишна зона під газон. Що вже вкладено та виконано в ремонті нами: Основні чорнові роботи виконано: - Гіпсова штукатурка стін - Цементна штукатурка у санвузлах - Повністю розведена електрика (щиток встановлений, багато точок під дизайн-проєкт) - Проведено сантехнічні роботи: виводи під водопостачання, каналізацію та опалення - Тепла підлога: уся площа *-го поверху, санвузол *-го поверху - Встановлена гребінка з можливістю контролю температури по зонам - Стяжка підлоги по всьому будинку - Виводи під кондиціонери - Встановлені дизайнерські радіатори Irsap Tesi * у дитячій кімнаті та спальні - Тепле підвіконня в головній спальні - Встановлений двоконтурний газовий котел Bosch Condens **** W - Придбана та встановлена Інсталяція унітазу на *-му поверсі Якісні вікна та двері встановлені. Прибудинкова територія повністю облаштована. Бонус - детальний дизайн-проєкт у подарунок де є як і технічна так і візуальна частина. Все зроблено якісно та з душею — ремонт робився для себе, але по причині переїзду маємо продати, залишилося лише виконати фінальні етапи оздоблення. Не втрачайте можливість купити готовий таунхаус у затишному районі з усім необхідним для комфортного життя! Таунхаус Гостомель Буча Ірпінь