продам квартира

Київська область Києво-Святошинський район,  cмт Гостомель
Показати на карті
35'000 USD
760 за м2
К-ть кімнат: 2
Тип кімнат: розділені
Поверх: 4 із 7
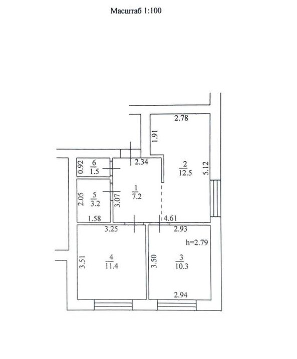
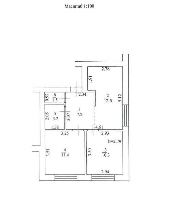
Площа: 46 м2
Житлова площа: 22 м2
Кухня: 13 м2
Ванні кімнати: 0
оновлено: 18 жовтня
Продається двокімнатна квартира у сучасному цегляному будинку 2021 року побудови. Загальна площа — 46,1 м², житлова — 21,7 м². Квартира розташована на 4 поверсі 7-поверхового будинку, є ліфт. Кухня-вітальня — 12,5 м², дві окремі кімнати — 10,3 та 11,4 м². Санвузол роздільний. Перекриття бетонне, підлога підготовлена цементною стяжкою. Встановлено електричне опалення, є централізоване водопостачання та каналізація, підключено електрику. Територія комплексу закрита, доглянута, з охороною. Є дитячий майданчик, зона барбекю, набережна, відкритий паркінг. Поряд — кав’ярні, магазини, зупинка громадського транспорту. До Бучанського парку — 7–10 хвилин пішки. Квартира без оздоблення, з усіма підключеними комунікаціями, готова до ремонту. Спокійний район із розвиненою інфраструктурою, поруч усе необхідне