продам будинок

Київська область Броварський район,  село Шевченкове
Показати на карті
88'000 USD
880 за м2
Код: 895801078
К-ть кімнат: 4
Поверх: 2
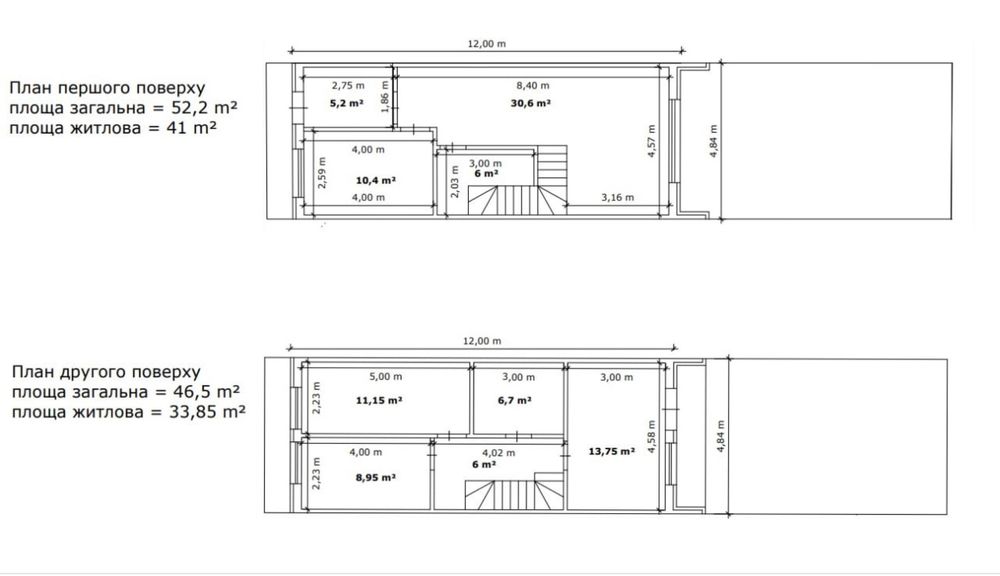
Площа: 100 м2
Земельна ділянка: 1 сот
оновлено: 17 листопада
Продам 2-пов. Таунхаус 100 м² від власника (з документами), під Києвом; Продається 2-поверховий Таунхаус 100 м² від власника (з документами), 10 хв. від Києва. За адресою: вул. Лікарська 19, с. Шевченкове. Пропонується 2-поверховий Таунхаус номер 3, який є частиною чудового комплексу з 9 будинків, кожен з яких суміжний між собою. Простора, асфальтована та облаштована приватна територія з паркомісцем та дитячим майданчиком. Будинок має панорамні вікна (з тонуванням), що робить його світлим та затишним. Вихід на дві сторони: попереду - спільна територія усих власників, позаду - особистий, огороджений дворик. Планування кімнат пропонується від забудовника, проте можливо урахувати будь-які ваші побажання. Два санвузли. Можливо поставити камін. На другому поверсі є сучасний балкончик (скляні перила), який не межує з сусіднім, що додає приватності. Перед очима розкривається мальовничий вид. Комплекс побудований з якісних, екологічних матеріалів. Будинок є енергоефективним. Встановлено сучасну систему опалення на базі теплового насоса VAILLANT (повітря–вода) — комфорт, безпека та економія до 70% на опаленні та кондиціонуванні! КОМПЛЕКТАЦІЯ (під чистове, фінішне оздоблення): • штукатурка гіпсова • стяжка підлоги • якісна розводка електрики • тепла підлога (розводка, опалення) • закладка траси під 3 кондиціонери До теплового насоса підключається: • бойлер (гаряча вода) • тепла підлога (опалення) • кондиціонування (влітку) ХАРАКТЕРИСТИКИ БУДИНКУ: • Стіни — КЕРАТЕРМ керамоблок 250 мм + перестінки 100 мм • Утеплення: фундамент і балкон — екструдований пінополістирол; фасад мінеральна вата 100мм, оздоблення BAUMIT, покрівля мінеральна вата KNAUF 200мм • Залізобетонне перекриття, армопояс • Дах — фінська бітумна черепиця KERABIT • Бетонні сходи, балкон • Вікна REHAU • Якісні вхідні двері КОМУНІКАЦІЇ: • Електрика — 15 кВт (світло офіційно підключене ДТЕК) • Оптоволоконний інтернет • Власний септик • Вода заведена в будинок — свердловина 50 м • Каналізація — заведена ОПАЛЕННЯ – ТЕПЛОВИЙ НАСОС VAILLANT: • Німецька якість, екологічно • Економія до 70% на опаленні, нагріві води та кондиціонуванні • Працює при –20°C • Можна зробити Wi-Fi-керування, працює не тільки на обігрів, а і на охолодження! ТЕРИТОРІЯ: • Ділянка — 1 сотка • Паркомісце для 2–3 авто • Закрита територія з асфальтованим заїздом • Простора прибудинкова зона ІНФРАСТРУКТУРА: • 10 хв до Києва • Поруч: магазин (300 м), спортзал (500 м), приватний пляж (1 км) • У радіусі 2 км: 2 школи (є шкільний автобус), дитячий садок, супермаркети, кафе, ресторани, амбулаторія • відділення Нової Пошти, Укрпоши, Розетка Здача готового проекту - осінь 2025 року. Ціна актуальна на зараз! Чудовий варіант для тих, хто шукає затишок та комфорт неподалік від Києва!