продам будинок
| Код: |
902627112
|
| К-ть кімнат: |
4
|
| Поверх: |
2
|
| Площа: |
145 м2
|
| Земельна ділянка: |
6 сот
|
| оновлено: |
25 квітня
|
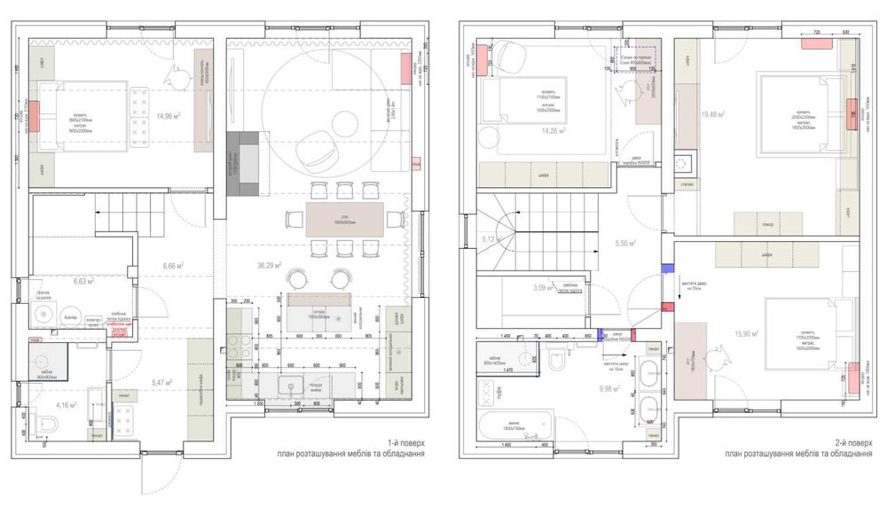
Деснянський; Продам будинок Деснянський район, троєщина (приватний сектор); До Вашої уваги, продається новий, двоповерховий будинок 2025 року будівництва, у новому приватному секторі, Деснянського району, Троєщина (м.Київ).
Поруч тільки нова забудова. Будинок виконаний за індивідуальним дизайнерським проектом , на ділянці 6 соток.
Загальна площа 145м2, два поверхи.
Перший поверх:
-гостьовий санвузол з душовою (з вікном)
-котельня
-велика гостьова кухня-вітальня з каміном (36м2)
- кімната
Другий поверх:
-великий господарський санвузол з душовою та великим вікном
-гардеробна
-три окремі кімнати
Будинок з газоблоку, утеплений кам’яною ватою (100 мм) та оздоблений камінцевою штукатуркою.
Вікна REHAU (з двокамерним склопакетом, наповненим аргоном).
Дах – металочерепиця (Італія), утеплений кам’яною ватою (250мм).
Виконана лазерна стяжка підлоги. Стіни оштукатурені.
На подвір’ї влаштована тротуарна плитка по бетонній плиті з можливостю заїзду вадких автомобілів.
Будинок обладнаний усіма комунікація:
-Септик (дворівневий) та каналізація
-Свердловина та водопровід
-Електрика та освітлення
-Тепла підлога (водяна)
-Камінна топка по Канадській технології (з розводкою по кімнатах). Незалежно від електрики, в будинку буде завжди тепло.
-Відкотні ворота з електроприводом
-Дощова каналізація (з власним бетонним резервуаром)
-Закладні траси під кондиціонери
Є фото і відео усіх етапів будівництва.
Дзвоніть та домовляйтесь на перегляд, будинок Вам неодмінно сподобається.
Брокери/рієлтори - прохання не турбувати.