продам квартира

Полтавська область ,  місто Кременчук
Показати на карті
25'000 USD
304 за м2
Код: 902504985
Поверх: 1 із 5
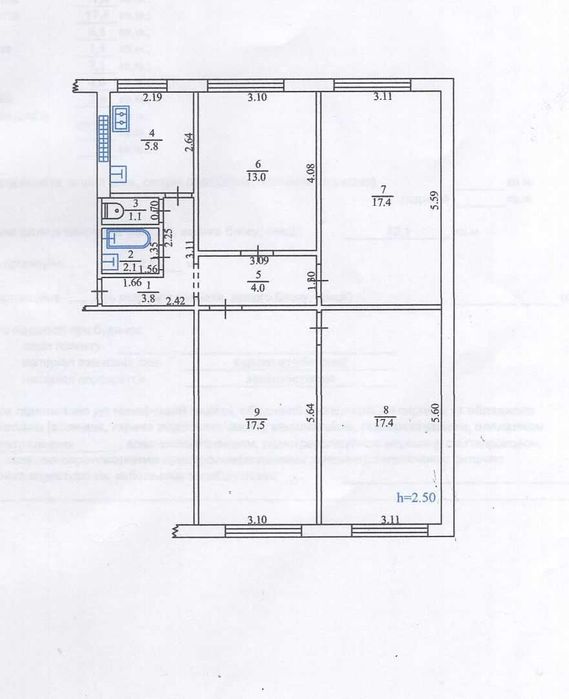
Площа: 82 м2
Кухня: 5.8 м2
оновлено: 04:15
4-х кімн. квартира; Продається 4-х кімнатна квартира від власника, площею 82 м² у чудовому місці – проспект Свободи (Толока). Квартира розташована на першому поверсі п’ятиповерхового будинку –комфортний поверх для проживання або цю квартиру гарно перепланувати під комерційне приміщення (мазагин, офіс, кав'ярня). Квартира кутова з косметичним ремонтом, без боргів, готова до продажу!