продам квартира
Львівська область , місто Львів
Код: |
893777654
|
Поверх: |
4 із 12
|
Площа: |
71.9 м2
|
Кухня: |
13.2 м2
|
Ванні кімнати: |
1
|
оновлено: |
05:45
|
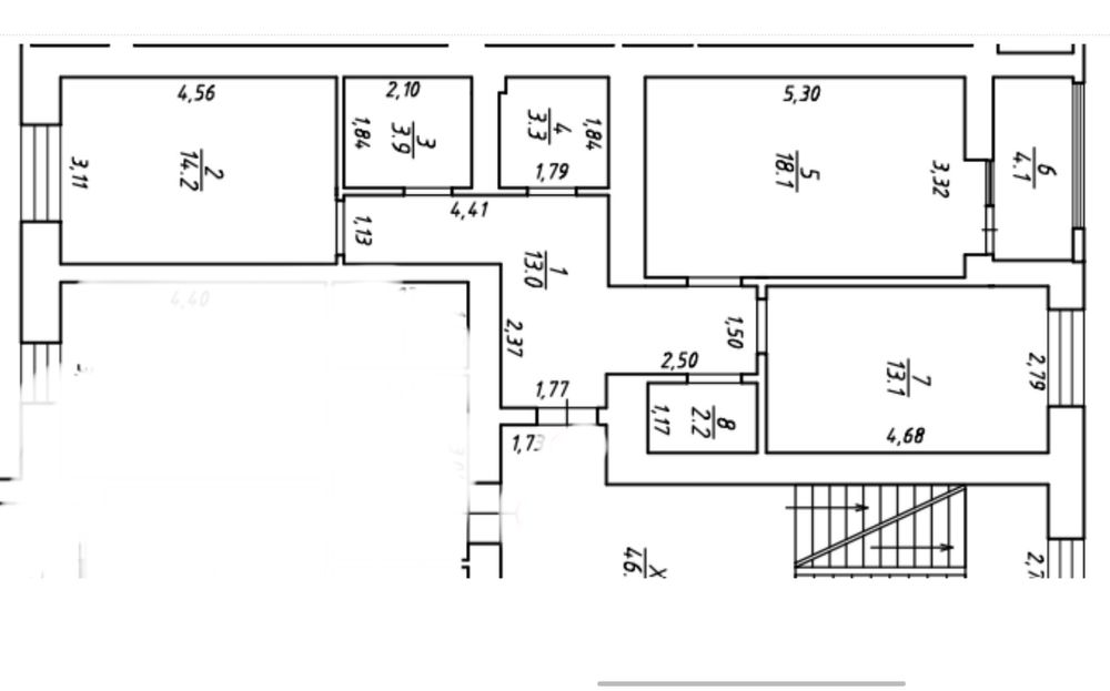
Залізничний; Продаж від власника 2 кім квартира 71.9 кв м ЖК Шенген; Продаю 2-кімнатну квартиру в ЖК Шенген, вул. Залізнична ( від власника)
•Площа: 71.9 кв.м
•Поверх: 4
•Планування: спальня, кухня, коридор, санвузол, окремий туалет, гардероб, лоджія
•Документи: переуступка
Квартира світла, зручне планування, будинок зданий, сусіди вже роблять ремонти.
Вікна з обох сторін, з однієї сторони на внутрішній двір, з іншої на будинок, але меншої висоти.
Крартира розміщена в 10 будинку, по середині( не кутова)
Додані можливі варіанти планування.