продам земля

Закарпатська область ,  місто Ужгород
Показати на карті
55'000 USD
777 за м2
Кадастровий номер: 2120882400:02:001:0004
Земельна ділянка: 0 сот
Цільове призначення: комерційну забудову
оновлено: 3 жовтня
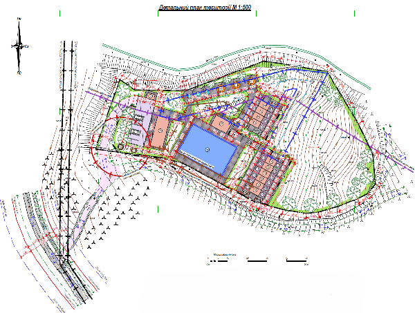
Пропонується до продажу земельна ділянка площею 0,7077 га, розташована: в Закарпатській області, Ужгородський район, ТГ Костринська Розтока, урочище “Ближня загорда” у безпосередній близькості до гірськолижного курорту Красія. Кадастровий номер: 2120882400:02:001:0004 Ключові переваги: ✅ Офіційно змінено цільове призначення: з ОСГ на землі житлової та громадської забудови (Для будівництва та обслуговування об'єктів туристичної інфраструктури та закладів громадського харчування) ✅ Затверджений детальний план території ✅ Отримано дозвіл на початок будівельних робіт ✅ Електропостачання підведене, встановлений лічильник ✅ На території є струмок, який мальовничо обрамлює частину ділянки ✅ Оптимальне співвідношення забудови та природи: • Площа забудови: 989,44 м² • Тверде покриття: 1 554,21 м² • Площа озеленення: 4 410,17 м² • Тимчасові споруди: 55,68 м² • Підпірні стінки: 67,50 м² • Площа обмежень: 3 274,70 м² • Відсоток забудови: 14% Площу та проєкт забудови можна змінити відповідно до ваших потреб. 🌿 Ідеальне місце для: Готельного комплексу 🌍 Локація, що продає себе сама: Тиха, екологічно чиста зона з мальовничими краєвидами Карпат. Ідеальна для реалізації проєкту з високим потенціалом прибутку на фоні зростаючого туризму у регіоні. 📑 Документи готові до швидкого продажу 📞 За деталями:+38 095 57 64 840 Контактна особа: Тетяна Ціна: 55 000 $ — реальна можливість інвестувати вигідно у майбутнє!