продам квартира

місто Київ
98'000 USD
1275 за м2
Код: 901801845
Поверх: 8 із 16
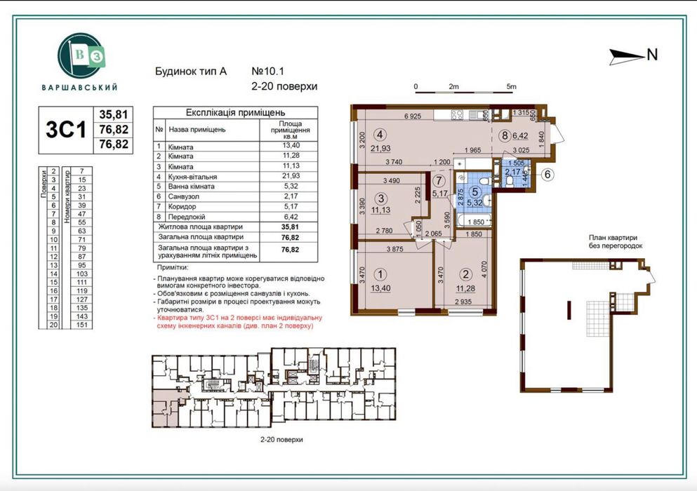
Площа: 76.82 м2
Кухня: 21.93 м2
Ванні кімнати: 3
оновлено: 1 жовтня
Подільський; Продам 3-кімнатну квартиру, переуступка, ЖК Варшавський 3; Продам 3-кімнатну квартиру Загальна площа - 76,82 м2 Будинок з генератором для аварійного живлення 8 поверх, без ремонту Перепоступка - навпіл Від власника