продам будинок

Львівська область Пустомитівський район,  село Зимна Вода
Показати на карті
199'999 USD
1176 за м2
Код: 899203022
К-ть кімнат: 5
Поверх: 2
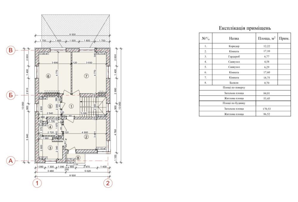
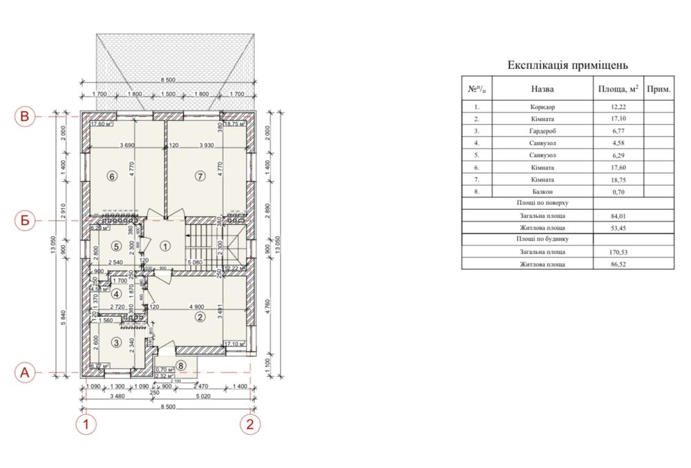
Площа: 170 м2
Земельна ділянка: 5 сот
оновлено: 15 березня
Продаж будинку в центрі Зимної Води! Топ локація!; Продаж сучасних будинків у самому центрі Зимної Води! Пропонуємо вашій увазі кілька нових будинків на етапі будівництва з продуманим до дрібниць плануванням, яке забезпечить комфорт та затишок для всієї родини. Площа кожного будинку — 163 м² Площа ділянок — від 4,5 до 5,7 соток Електрика — 3 фази, 15 кВт Центральне водопостачання та каналізація Газ — підключено ТОП ЛОКАЦІЯ — центр Зимної Води! Асфальтований доїзд, тиха й спокійна вулиця в самому серці смт, з розвиненою інфраструктурою та зручним сполученням із Львовом. Такої можливості більше не буде — у центрі Зимної Води вільних ділянок практично не залишилося! Поруч: 100-300м. • школа та дитячий садочок • спортивні й дитячі майданчики • церква • парки для прогулянок • продуктові магазини та супермаркет • будується великий спортивний комплекс з басейнами — чудова перспектива для активного дозвілля • неподалік заплановане будівництво ТРЦ Термін завершення будівництва — друга половина 2026 року Ціна — від 1200$ за м² Ці будинки — унікальна нагода стати власником якісного житла в престижному районі з усіма зручностями. Дзвоніть вже зараз, щоб забронювати перегляд і обрати найкращий варіант для своєї сім’ї!