продам будинок

Волинська область Луцький район,  село Струмівка
Показати на карті
87'000 USD
690 за м2
Код: 901552998
Кадастровий номер: 0722884800:03:001:1144
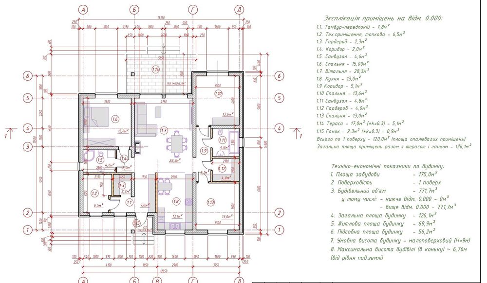
К-ть кімнат: 4
Поверх: 1
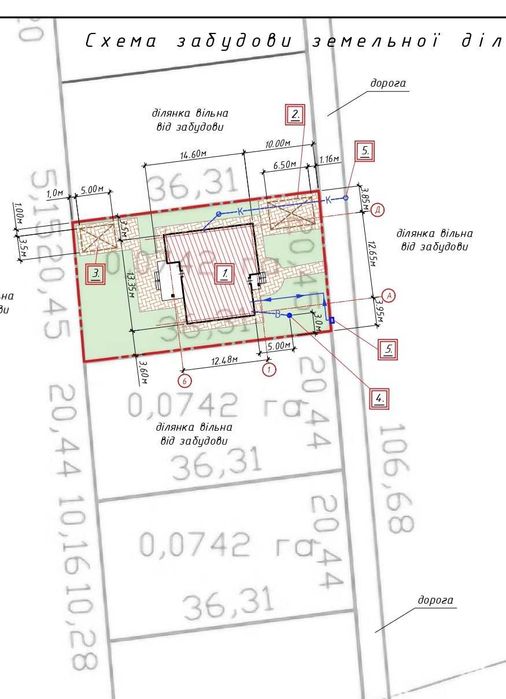
Площа: 126 м2
Земельна ділянка: 7.42 сот
оновлено: 18:47
Продаж окремостоячого будинку у с.Струмівка,поряд з ЖК Сімейна Фортеця; Продаж окремостоячого будинку у с.Струмівка на етапі будівництва! Площа-126м2. 7,42 соток Розташований у с. Струмівка, поряд з ЖК «Сімейна Фортеця» Основні характеристики будівництва: -збудований з червоної цегли - сучасний фасад баранек -дах-металочерепиця (німеччина) -утеплення стін пінопластом (15см), дах утеплений (20см.) мінеральною ватою, цоколь пінопластом (10см) -монолітний армований фундамент 110см з гідроізоляцією, залита армована плита, додаткове армування зони під камін - комин основний та під камін, витяжний цегляний канал -встановлені енергозберігаючі вікна фірми (5-ти камерний профіль) -якісні та надійні вхідні двері За додаткову плату можна встановити паркан. Внутрішні роботи: чистова стяжка, штукатурка, розведено електрику та водяну теплу підлогу по всій площі будинку) Зручне та продумане до дрібниць планування будинку на 2 зони, яке виключає суміжність кімнат: - кухня-вітальня з виходом на криту терасу - 2 санвузли - 2 гардеробні кімнати - 3 окремі спальні кімнати - технічна кімната (котельня) - вхідна група - сучасні великі панорамні вікна Комунікації: -Заведено-13 кВт електроенергії -Центральна каналізація -Свердловина з насосом Хороший доїзд, асвальт, щебнева дорога 50м. Зручне для проживання місцерозташування в новому масиві, який активно забудовується. Зручна транспортна розв'язка, в пішому доступі зупинка громадського транспорту, ЖК "Сімейна Фортеця, продуктові магазини, тощо.