продам квартира

Полтавська область ,  місто Кременчук
Показати на карті
4'998'000 ГРН
79865 за м2
Код: 901554016
Поверх: 7 із 10
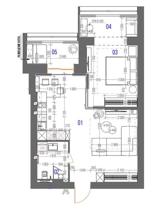
Площа: 62.58 м2
Кухня: 31.94 м2
Ванні кімнати: 2
оновлено: 25 грудня
Продається простора 1-кімнатна квартира 63 м² у ЖК Oasis 1 (Кременчук); Шукаєте стильне та сучасне житло? Маємо для вас ексклюзивну пропозицію! Про квартиру: Площа — 62,58 м² Дизайнерський проєкт із продуманим плануванням Сучасний ремонт на фінальній стадії готовності (90%) Вже укладено дорогий ламінат Повністю проведена електропроводка Встановлено якісний електрощиток захисту Вмонтований газовий котел По всій квартирі облаштовані теплі підлоги У підлозі змонтовані конвектори для захисту вікон від конденсату У ванній — плитка та підведені всі комунікації Вам залишилось лише обрати колір стін та шпалери у спальні — під свій смак і стиль. Переваги: Новий сучасний житловий комплекс ЖК Oasis Велика площа для однокімнатної квартири Високий рівень готовності — можна швидко заїжджати Локація: ЖК Oasis — це район із розвиненою інфраструктурою, зручним транспортним сполученням та комфортним середовищем для життя.