продам земля
                        
                        
                        
                        
                            
                                
                                
                                    | Код: | 900159048 | 
                                
                                
                                    | Кадастровий номер: | 7110136400:01:025:0077 | 
                                
                                
                                    | Земельна ділянка: | 4 сот | 
                                
                                
                                    | Цільове призначення: | інше | 
                                
                                
                                    | оновлено: | 21:12 | 
                                
                                
                            
                        Земельна ділянка вул. Амброса 127 ( вїзд від будинку Толстого 76); Пропоную ділянку для тих хто хоче  побудувати будинок своєї мрії або як бізнес проект.  
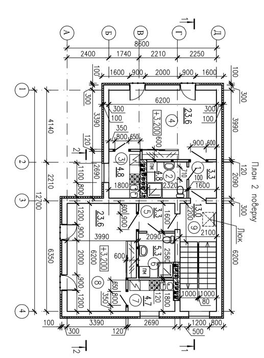
На ділянку отриманий через ДІЮ будівельний паспорт для для будівництва будинку з чотирьох однокімнатних квартир з окремою кухнею, санвузлом та невеличким тамбуром .
 Комунікації близько: вода 100 м, каналізація 3 м, електромережі під час воєнного стану не дають техумови а роблять тимчасове підключення.
Проектна  документація із геотопозйомкою, геологічними вишукуваннями та визначеною плямою забудови у вартість ділянки не входить.
Для зацікавлених осіб бізнес проектом  пропоную газобетоні блоки D400 гладкі 450 мм , вікна та балконні двері ( Rehau 5-ти камерний з двокамерними склопакетами) згідно проекту, ідеї та напрацювання по улаштуванню фундаментів. Блоки знаходяться на подвір'ї мого будинку на Хімселищі з добрим під'їздом любим транспортом, вікна в сухому складі. Блоки можна вивозити частинами.