продам будинок

Київська область Броварський район,  село Княжичі
Показати на карті
95'000 USD
863 за м2
Код: 886783183
Кадастровий номер: 3221284001:01:012:0062
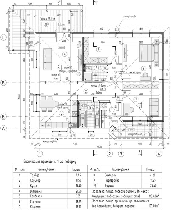
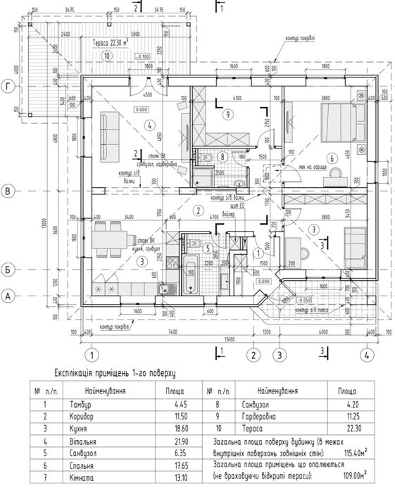
К-ть кімнат: 4
Поверх: 1
Площа: 110 м2
Земельна ділянка: 6.7 сот
оновлено: 12 листопада
Новий будинок 110 м² + тераси у Княжичах, 6.7 соток, Метро 12 км; Локація: с. Княжичі, Броварський район — 12 хв до Києва (метро «Лісова»). Тиха вулиця, ліс за 300 м, поруч забудовані ділянки. ПРО БУДИНОК: • Одноповерховий • Площа: 110 м² + 2 тераси • Ділянка: 6.7 соток (приватизована, кадастровий номер 3221284001:01:012:0062) • Стан: під чистове оздоблення • Кількість кімнат: 4 (кухня-студія + 3 спальні + 2 санвузли) БУДІВНИЦТВО ТА ІНЖЕНЕРІЯ: • Стіни: газоблок 400 мм D500, армування • Фундамент: стрічковий, утеплення екструдованим пінопластом по всьому периметру • Дах: бітумна черепиця, перекриття: утеплення 300 мм мінвати • Підлога: утеплення 70мм пінополестиролом + 11 контурів теплої підлоги (вся площа) • Вікна: WDS 80 мм, триконтурні, енергозберігаючі, протизламна фурнітура • Двері: «Страж» з 2-ма замками Mottura • Комунікації: o Електрика — 15 кВт, 3 фази o Зроблена проводка та слаботочка по всьому будинку o Вода — власна свердловина з автоматикою, заведена в дім o Каналізація — розведенна по будинку, септик o Підготовка під заведення інтернету та додаткових кабелів, вентиляційні канали ЮРИДИЧНИЙ СТАТУС: • Земля у власності • Будинок введений в експлуатацію (2021 рік) • Повний пакет документів для нотаріуса ІНФРАСТРУКТУРА: • До метро «Лісова» — 12 хв машиною • Поруч школа, садочок, магазини • Автобусна зупинка — 10 хв пішки ЗВ'ЯЗОК: Готовий до перегляду у зручний для вас час. Можливий торг на місці. Власник. Будували для себе. Історія будівництва в інстаграмі: buduyu_budinok