продам будинок

Черкаська область ,  місто Черкаси
Показати на карті
98'000 USD
725 за м2
Код: 899054027
К-ть кімнат: 4
Поверх: 2
Площа: 135 м2
Земельна ділянка: 5.5 сот
оновлено: 23 травня
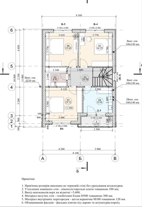
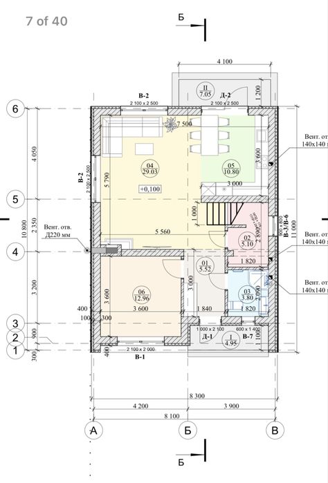
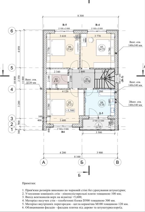
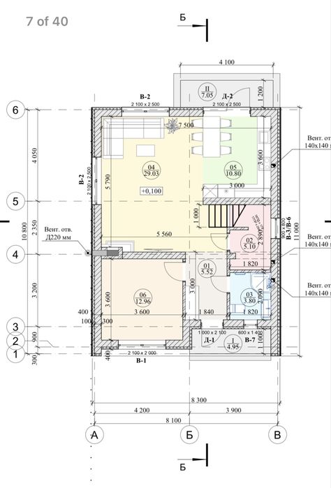
Будинок в Черкасах, новобудова; До уваги ,Продаж будинку на стадії будівництва. ( Поряд стоїть будинок який вже продан , є можливість подивитись на готовий результат ) Продаж на стадії будівництва . Податку при переоформлені немає . В ціну входить : коробка з кришею , тепла підлога водяна з електро котлем . утеплення та оздоблення фасаду дома згідно проєкту . все робиться згідно проєкту дотримуючись всіх вимог та технологій будівництва. без ландшафта . заведені всі комунікації : світло , вода , каналізація.після завершення будівництва ціна буде більша .Купуючи на моменті будівництва у вас є можливист змінити планіровку або додати єлементи які б ви хотіли в своєму домі. До кінця 2026 року дом буде здан і введен в експлуатацію Ціна готового будинку буде 110.000$ не чекай купуй зараз Раен: Сади пров Половецький