продам квартира

місто Київ
3'100'000 ГРН
62000 за м2
Код: 893819478
Поверх: 5 із 5
Площа: 50 м2
Кухня: 7 м2
Ванні кімнати: 3
оновлено: 26 жовтня
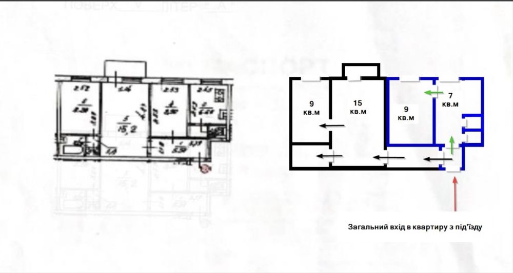
Солом'янський; Продається 3-кімнатна квартира, розділена на 2 смарт-квартири.; Готовий бізнес. Власник •⁠ ⁠Адреса: Академіка Шалімова 17 •⁠ ⁠Поверх: (5) •⁠ ⁠Будинок: панельна 5 поверхівка •⁠ ⁠Загальна площа: 50 м² Статус: Без обтяжень. Прямий продаж від власника, без комісії! Планування: Квартира перепланована у дві окремі однокімнатні смарт-квартири. Несучі стіни не змінювались — узгодження не потрібне. Вся проводка с коридора до счетчика и от счетчика к розеткам, светильникам и выключателям заменена на новую медную, к розеткам сечение 2,5мм, к светильникам 1,5мм медного провода. С лестничной клетки в квартиру к счетчику медный провод сечение 3,5мм. Смарт №1 (чорний контур на плані): •⁠ ⁠9 м² | Кімната •⁠ ⁠15 м² | Кухня — 7 м² • Туалет і душова сміжні • Балкон •⁠ ⁠Окремий вхід •⁠ ⁠Компактна та функціональна Смарт №2 (синій контур): •⁠ ⁠9 м² | Кімната •⁠ ⁠7 м² | Кухня •⁠ ⁠Туалет та душ роздільні •⁠ ⁠Окремий вхід •⁠ ⁠Простора, світла, зручне зонування •⁠ ⁠Без балкону У кожній квартирі стоїть бойлер і лічильники води і світла. Готовий дохід: •⁠ ⁠Обидві смарт-квартири здані в оренду •⁠ ⁠Пасивний дохід з першого дня •⁠ ⁠Надійні квартиранти — можна зберегти діючі договори Деталі та перегляд за телефоном. Продаж від власника. Ідеальний варіант для інвестиції або поєднання життя доходу!