продам будинок

Дніпропетровська область ,  місто Павлоград
Показати на карті
31'000 USD
324 за м2
Код: 896717769
К-ть кімнат: 3
Поверх: 1
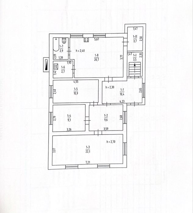
Площа: 95.6 м2
Земельна ділянка: 8.62 сот
оновлено: 03:35
Продам просторий будинок у Павлограді | Будинок зданий, тільки продаж; Будинок зданий, тільки продаж. Не рієлтор, без комісії, є розумний торг. Просторий будинок для великої родини: 3 окремих кімнати, велика простора кухня з коморою для зберігання, санвузол суміжний, котельня, бомбосховище. Стан після ремонту. Будинок цегляний, 1980 року. Електрика, газове опалення, свердловина, інтернет. Земельна ділянка 8,6 соток, є місце під сад та город. Також є гараж для машини і просторий асфальтований двір. Будинок знаходиться по вул. Черешнева (колишня Ковната). Поруч дитячий садок, автобусна зупинка, магазин. До центру міста 10 хв. Телефонуйте, або пишіть на оlx. Запрошую на перегляд — покажу і розповім усі деталі.