продам будинок

Волинська область Луцький район,  село Боратин
Показати на карті
38'999 USD
406 за м2
Код: 896256297
К-ть кімнат: 4
Поверх: 2
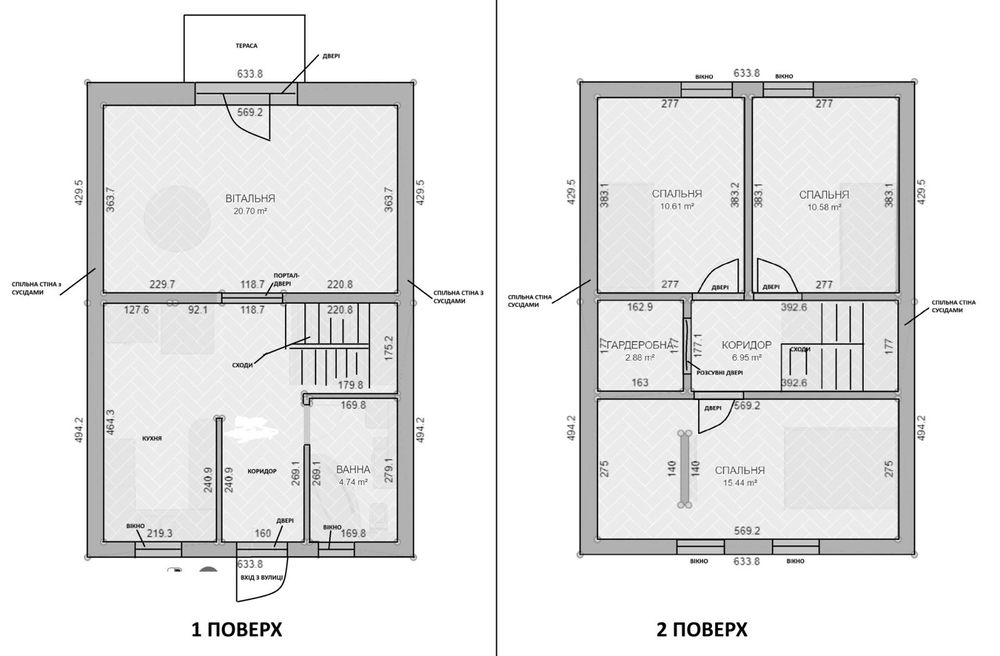
Площа: 96 м2
Земельна ділянка: 1 сот
оновлено: 2 жовтня
Будинок Такнхаус Боратин; Продам свій будинок в таунхаусі в ближньому передмісті Луцька - в с. Боратин. Без внутрішніх робіт. Хороше розташування, центральна вулиця, поруч зупинка, асфальтованих доїзд. ТЦ Baobab - 1.4 км Школа Боратин - 1.4 км Центр міста - 10хв. на авто Площа 96м². На першому поверсі - санвузол, кухня, вітальня з виходом на терасу. На другому поверсі - під вільне планування. Холодне горище. Утеплене перекриття. Будинок утеплений пінопластом. Покрівля металочерепицею. Центральне водопостачання. Септик. Електрика 3 фази. Огороджена територія, бруківка. Газ на межі ділянки таунхаусів. Продаж напряму від власника без комісії. Жодних витрат на переоформлення.