продам квартира
Львівська область , місто Львів
| Код: |
892659435
|
| Поверх: |
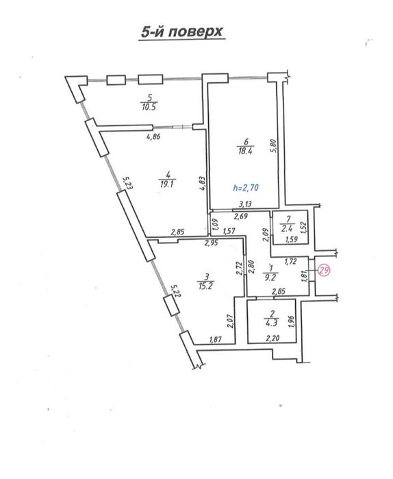
5 із 6
|
| Площа: |
79.1 м2
|
| Кухня: |
15.2 м2
|
| Ванні кімнати: |
1
|
| оновлено: |
14 листопада
|
Галицький; Продаж затишної 2-кімнатної квартири в ЖК «Брама»; Продаж 2-кімнатної квартири в ЖК «Брама»
м. Львів вул. Б. Хмельницького. Забудовник Ріел
Простора світла квартира площею 79,1 м² на 5 поверсі сучасного комплексу з усіма зручностями для комфортного життя.
Квартира здана та в стані нульового циклу, що дозволяє вам реалізувати власний дизайн-проєкт.
• 2 окремі кімнати - 18,4 м²
та 19,1 м²
• Простора кухня - 15,2 м²
• Лоджія - 10,5 м²
• Окрема ванна та вбиральня
• Висота стелі - 2,7 м
• Опалення - будинкова котельня
Вікна квартири виходять на культурний простір Jam Factory — неймовірна локація з творчою атмосферою
На території ЖК:
• Зона відпочинку
• Дитячий і спортивний майданчики
• Укриття
До центру Львова — лише 2,5 км
Вартість — 95 000 €
Продаж від власника — без комісій!
Телефонуйте - 05******51, щоб дізнатись більше або домовитись про огляд квартири!