продам квартира
Харківська область , місто Харків
| Код: |
748737914
|
| Поверх: |
3 із 3
|
| Площа: |
132 м2
|
| Кухня: |
7 м2
|
| Ванні кімнати: |
3
|
| оновлено: |
17 квітня
|
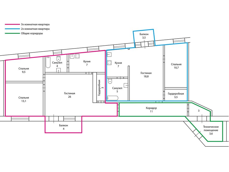
Холодногірський; Центр, 2 квартири (3 та 2 кім.) в одному передпокої; Вулиця Полтавський шлях, 22/5, вхід з вулиці Благовіщенська. Біля "Фабрика спейс"
Продаж двох квартир 3 та 2 кімнатні з меблями, технікою та загальним передпокоєм. Знаходяться на 3-му поверсі, висота стелі 3.60. Над всією квартирою можна зробити мансардовий поверх.
Перепланування узаконено, новий тех. паспорт, 2 хазяїна. Лічильники загальні на дві квартири.
Квартири:
В передпокої дві шафи купе для речей та взуття. Перед передпокоєм коридор з шафою для інструментів при вході.
— 3-х кімнатна: гардеробна, вітальня, спальня, дитяча, кухня, с/в сумісний, засклений балкон. Підлога паркет, плитка в кухні і с/в
— 2-х кімнатна: гардеробна, кухня-вітальня, спальня, с/в сумісний, засклений балкон. Підлога паркет, плитка в кухні і с/в
Поблизу — метро Центральний ринок, Історичний музей, Майдан Конституції, Ж/Д вокзал. Ринок, супермаркети, сквери та парк, транспорт в будь яку точку міста, аптеки, кафе, ресторани.
2-х кімнатна в оренді за 7000 грн + комунальні. До війни здавалась за 11000 грн + ком
3-х кімнатна – зараз живе власниця. Здавалась за 16000 грн + ком
80 000$ Торг