продам будинок

Дніпропетровська область ,  місто Дніпро (Дніпропетровськ)
Показати на карті
125'000 USD
1461 за м2
Код: 895101233
Кадастровий номер: 1221486200:01:137:0741
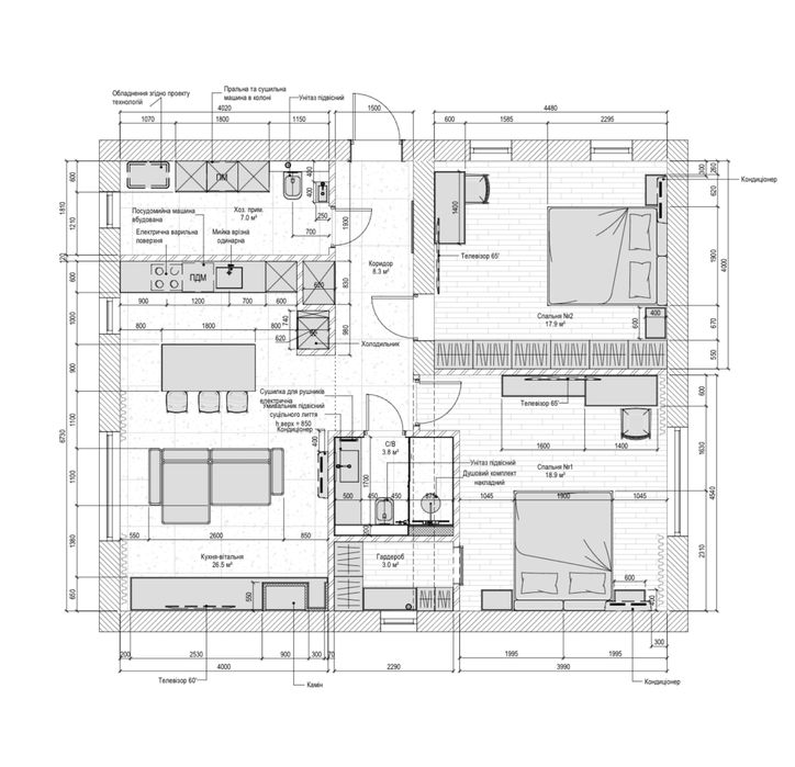
К-ть кімнат: 3
Поверх: 1
Площа: 85.5 м2
Земельна ділянка: 10 сот
оновлено: 1 жовтня
Амур-Нижньодніпровський ; Новый шикарный современный дом 86 м2 в 10 минутах от победы; Шикарный современный новый дом 2024 г. постройки общей площадью 85,5 м2 + 60м2 терраса, участок площадью 10 соток (два кадастровых номера), расположенный с/т Днепр-2 (районн Старые Кодаки, Сажевка, ул. Дальняя, 10 минут на автомобиле до кольца на Победе - 7 км). Дом строился для себя — ни на чем не экономили! Всё новое, свежий ремонт!! Закрытая улица со шлагбаумом, видео наблюдение по улице, освещение улицы, вывоз муссора (мусорные баки), хорошие соседи. Технические характеристики дома: Фундамент - железобетонная монолитная подушка на глубине 1,4 м (толщиной 400 мм) + блоки ФБС + армопояс. Черновой пол - 100 мм. Стяжка - 150 мм. Наружные стены - газобетон 400 мм, утепленные 100 мм пенопласт. Крыша - четырехскатная битумная черепица, премиальная, двухслойная. Перекрытие первого этажа - плиты перекрытия (утеплены пенополиуретаном (ППУ). Высота потолков - 3 м. Окна REHAU - 70 мм стеклопакет. Внутренние перестенки из кирпича. Коммуникации: Централизованная дочищенная вода. Централизованная техническая вода для полива. Выгребная яма - 9м3. Электричество - 3 фазы, двух тарифный счетчик, 25А автомат + возможный аналогичный второй ввод для бани, беседки и т. д. Отопление - водяной теплый пол + электро котел + гребенка. Циркуляционный насос на горячую воду + бойлер. Дровяной камин с шикарной тягой. Дополнительно: Сантехника - hansgrohe и grohe. Насосная станция - Grundfos Scala2 Емкость для воды - 400 л. Двери скрытого монтажа. Выведены трассы кондиционирования (3 помещения). Многоуровневое освещение и подсветки. Подсветка фасада. Паркинг (парковочная площадка) - 90 м2, вмещает 4 больших автомобиля + бетонированные дорожки к дому. Обустроенная бетонная терраса перед домом общей площадью 60м2 (шезлонги, мебель, бассейн, зонт). Откатные ворота на электроприводе. Установлен аккумулятор на ворота + интернет (оптика). Вывод под генератор + генератор 3,5 кВт. Есть небольшой хоз блок за домом + дровник. Видеонаблюдение. Планировка: 1. Топочная-постирочеая + с/у - 7м2 (полностью все помещение в кафеле). 2. Кухня-гостиная - 26,5 м2 (декоративная штукатурка + большеформатный керамогранит на полу). 3. Спальня 17,9 м2 (обои + винил на полу) 4. Спальня 18,9 м2 + гардероб 3м2 (обои + винил на полу) 5. Просторный санузел - 3,8 м2 (большеформатный керамогранит) 6. Холл - 8,3 м2 (декоративная штукатурка + большеформатный керамогранит на полу). Приватизированный земельный участок общей площадью 10 соток (два кадастровых номера). В стоимость входит все, что указано в описании и на фото. Дом на сейчас без встроенной кухни и частично без мебели — можно обустроить под себя. Все документы готовы к сделке, дом введен в эксплуатацию и зарегистрирован, один собственник. Продажа по семейным обстоятельствам в связи с переездом. Звоните или пишите — дом уже готов к просмотрам. Заезжайте хоть завтра!