продам будинок

Київська область Києво-Святошинський район,  місто Боярка
Показати на карті
42'000 USD
600 за м2
Код: 881796006
К-ть кімнат: 3
Поверх: 2
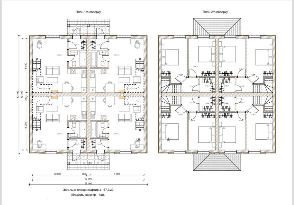
Площа: 70 м2
Земельна ділянка: 1.5 сот
оновлено: 25 квітня
Продам таунхаус, квартиру,квадродім; Продаж сучасного таунхауса між Білогородкою та Бояркою. БЕЗ РІЕЛТОРІВ!!! Будинок розташований в тихому місці поруч з природою — навколо ліс і поле, при цьому до Києва всього 15 хвилин на авто. Відмінний варіант для тих, хто хоче жити ближче до природи, але недалеко від міської інфраструктури. Основні характеристики: • Площа будинку — 99 м² • 3 рівні • ділянка — близько 1,5 соток • власний двір • місце для паркування автомобіля • підключена каналізація • будинок на електриці Будинок продається в стані вільного планування — всередині немає перегородок, тільки несучі стіни. Це дає можливість повністю зробити планування під себе і реалізувати будь-який зручний варіант. Також є приклад такого ж вже облаштованого будинку — можна побачити, як буде виглядати планування після ремонту. Район активно розвивається, навколо ведеться забудова приватних будинків. Ціна: 42 000 $ Можливий торг для реального покупця. Телефонуйте або пишіть — відповімо на питання і домовимося про перегляд.