продам будинок
Одеська область , місто Одеса
| Код: |
892901995
|
| К-ть кімнат: |
2
|
| Поверх: |
2
|
| Площа: |
60 м2
|
| Земельна ділянка: |
0.2 сот
|
| оновлено: |
16 лютого
|
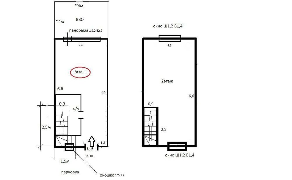
Хаджибейський; Таунхаус Одеса ул. Умова 60м2; Продам свой таунхаус 60 м2 с задним двором и закрытой общей територией для парковки. Отдельный вход, парковка напротив своего дома. Дом на стадии завершения работ, уже возможна регистрация. Можно обсудить под єВідновлення .Удобное расположение , до центра 15 минут на машине даже утром! Кого заинтересовало звоните. Есть видеообзор.