Увійти
example@mail.ux
Увійти
Реєстрація
Використовуйте букви і цифри. Від 3 до 64 символів
Введіть від 6 до 14 цифр.
example@mail.ux
Я приймаю
умови користування сайтом
Зареєструватися
Забули пароль?
example@mail.ux
Відновити пароль
Згенерований пароль відправлено на ваш email
. Ви можете його змінити на сторінці профілю
Ок
Пошук нерухомості
Рієлтори
Контакти
ВХІД
РЕЄСТРАЦІЯ
Курс валют
42.19
49.47
продам квартира
Львівська область Львівський район,
село Артищів
Показати на карті
55'000 USD
820 за м
2
ГРН
USD
ЄВРО
1
/
4
Код:
892819001
Поверх:
7 із 7
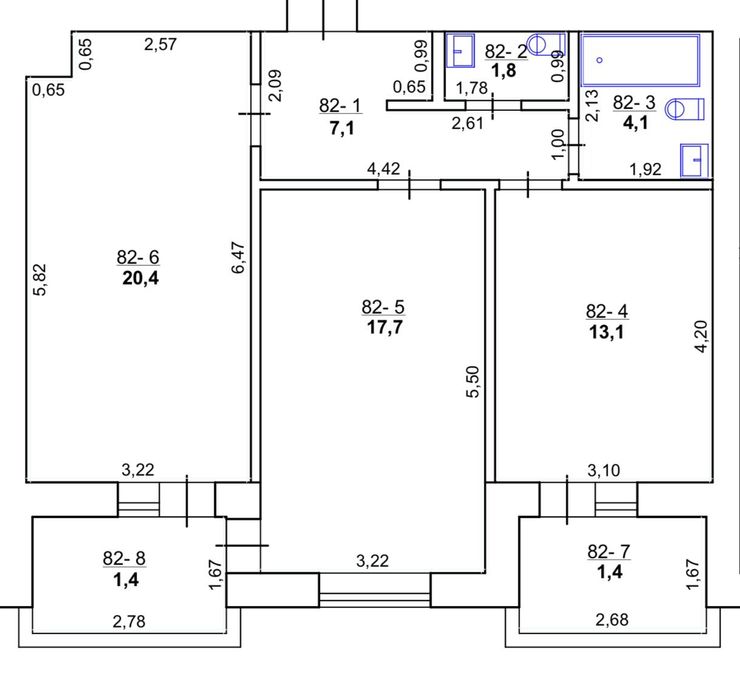
Площа:
67 м
2
Кухня:
20.4 м
2
Ванні кімнати:
1
оновлено:
13 грудня
Квартира в новобудові м.Городок; Продається двокімнатна квартира в м.Городок по вул.Чорновола, 8к.
Ключові слова:
продам квартиру село Артищів
,
продам квартиру Львівська область Львівський район село Артищів
,
продам квартиру
,
55'000 USD
820 за м
2
ГРН
USD
ЄВРО
Код:
892819001
Поверх:
7 із 7
Площа:
67 м
2
Кухня:
20.4 м
2
Ванні кімнати:
1
оновлено:
13 грудня
Контакти
Ольга
перейти на сторінку оголошення
Всі оголошення (1)
Повідомляйте, що оголошення знайдено на сайті УкрХата