продам будинок

Київська область Києво-Святошинський район,  місто Вишневе
Показати на карті
110'000 USD
1145 за м2
Код: 891833706
К-ть кімнат: 3
Поверх: 3
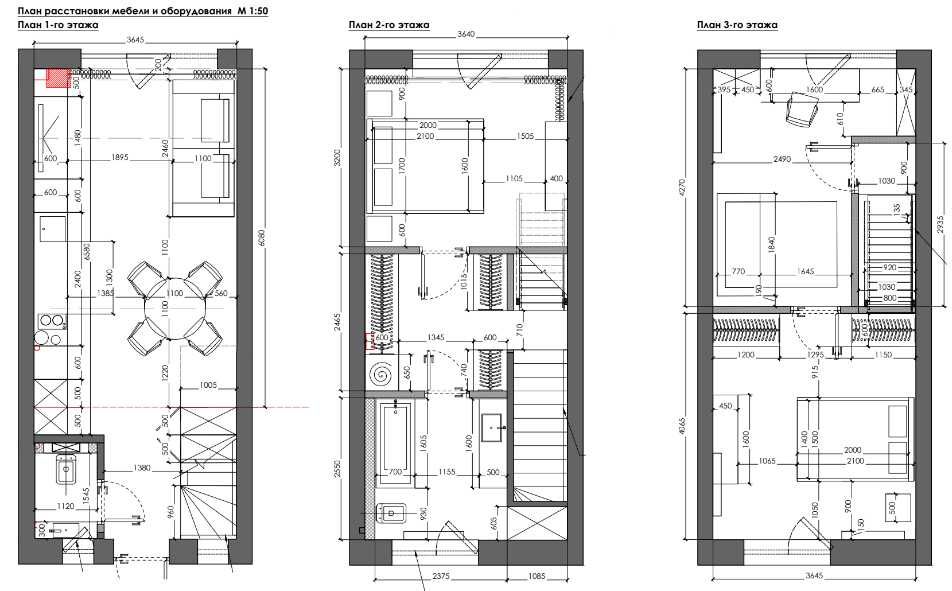
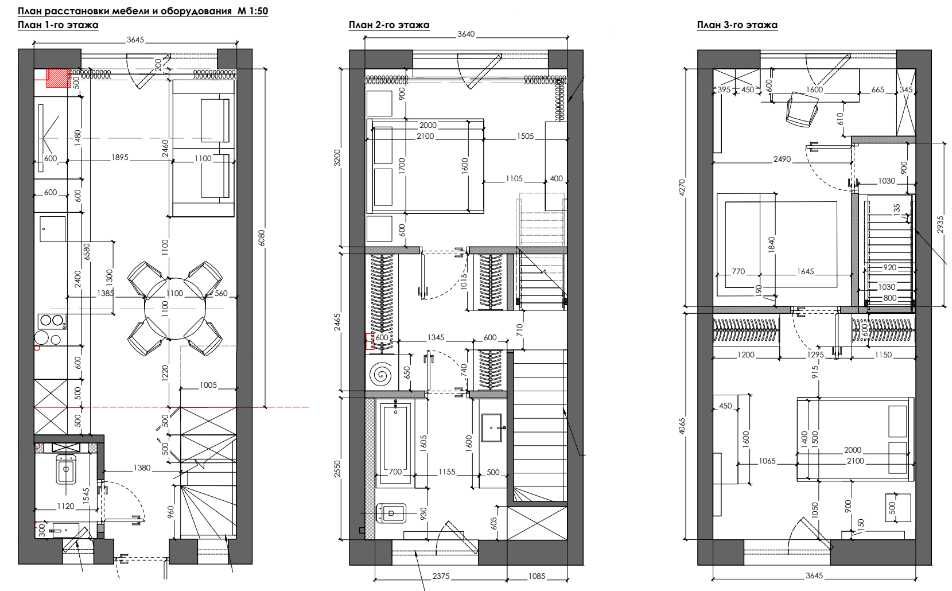
Площа: 96 м2
Земельна ділянка: 1 сот
оновлено: 14 грудня
Продам Таунхаус, Софіївська Борщагівка, без комісії, від власника; Продається стильний трьохповерховий таунхаус у найближчіому передмісті (1,5км до Києва). Адреса: вул. Дача 62, Софіївська Борщагівка, Бучанський район, загальна площа 96м. Без комісії! В будинку зроблено якісний ремонт з продуманим плануванням: власна свердловина, електрика, сантехніка, газове опалення (встановлено двоконтурний газовий котел, батареї, тепла підлога на першому поверсі та санвузли), виходи під кондиціонери, інтернет, на стінах декоративна штукатурка., в санвузлах плитка. 1-й поверх - простора кухня-вітальня (32м) з панорамними вікнами та виходом у просторий дворик, санвузол та комірка під сходами. 2-й поверх - спальня, простора ванна кімната та гардеробна. 3-й поверх - дві кімнати - спальня та кабінет. Тихий приватний сектор, тупикова вулиця. Територія закрита, комплекс заселений, сусіди ліворуч та праворуч вже зробили ремонт. Поряд є декілька ЖК з магазинами та супермаркетами. До зупинки 5-7 хв. Телефонуйте, щоб домовитись про перегляд Телефон власника: +38********85 +38********32