продам земля
Закарпатська область Великоберезнянський район, село Костринська Розтока
Показати на карті
| Код: |
892279617
|
| Кадастровий номер: |
2120882400:02:001:0004
|
| Земельна ділянка: |
70.77 сот
|
| Цільове призначення: |
інше
|
| оновлено: |
31 жовтня
|
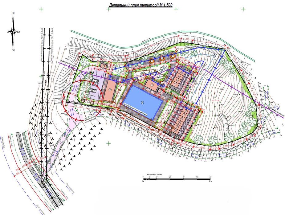
Продаж земельної ділянки для будівництва туристичної інфраструктури; Пропонується до продажу земельна ділянка площею 0,7077 га, розташована: в Закарпатській області, Ужгородський район, ТГ Костринська Розтока, урочище “Ближня загорда” у безпосередній близькості до гірськолижного курорту Красія.
Кадастровий номер: 2120882400:02:001:0004
Ключові переваги:
• Офіційно змінено цільове призначення: з ОСГ на землі житлової та громадської забудови (Для будівництва та обслуговування об'єктів туристичної інфраструктури та закладів громадського харчування)
• Затверджений детальний план території
• Отримано дозвіл на початок будівельних робіт
• Електропостачання підведене, встановлений лічильник
• На території є струмок, який мальовничо обрамлює частину ділянки
• Оптимальне співвідношення забудови та природи:
• Площа забудови: 989,44 м²
• Тверде покриття: 1 554,21 м²
• Площа озеленення: 4 410,17 м²
• Тимчасові споруди: 55,68 м²
• Підпірні стінки: 67,50 м²
• Площа обмежень: 3 274,70 м²
• Відсоток забудови: 14%
Площу та проєкт забудови можна змінити відповідно до ваших потреб.
Ідеальне місце для: Готельного комплексу
Локація, що продає себе сама:
Тиха, екологічно чиста зона з мальовничими краєвидами Карпат. Ідеальна для реалізації проєкту з високим потенціалом прибутку на фоні зростаючого туризму у регіоні.
Документи готові до швидкого продажу
За деталями: +38 (09**********40
Контактна особа: Тетяна
Ціна: 55 000 $ — реальна можливість інвестувати вигідно у майбутнє!