продам квартира

Чернігівська область Козелецький район,  смт Десна
Показати на карті
27'000 USD
609 за м2
Код: 886914146
Поверх: 2 із 5
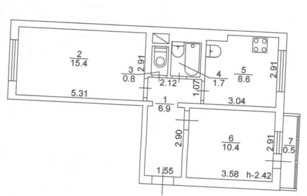
Площа: 44.3 м2
Кухня: 8.6 м2
Ванні кімнати: 1
оновлено: 14 березня
Продам двокімнатну квартиру в селищі Десна; Продається приватизована 2-х кімнатна квартира в селищі Десна Чернігівської області. Квартира на дві сторони. Не кутова, тепла, суха. З гарним видом на зелену зону з відкритого балкона. На вікнах склопакети, всі вікна обклеєні бронеплівкою в два шари. Квартира в гарному охайному стані, після ремонту "для себе", повністю мебльована. Санвузол роздільний. Є бойлер, вбудовані пральна машина та газова духова шафа, є холодильник. Кухонні столешні покриті захисним гнучким склом. Для бойлера та на кухню заведена нова електропроводка. Замінені лічильники на воду. Зручне транспортне сполучення з Києвом. Квартира повністю готова для заселення. Додаткова інформація за телефонами 06******46 (Валентина), 06******31 (Олександр).