продам будинок

Київська область Києво-Святошинський район,  село Стоянка
Показати на карті
165'000 USD
916 за м2
Код: 884377341
Кадастровий номер: 3222480802:04:001:0332
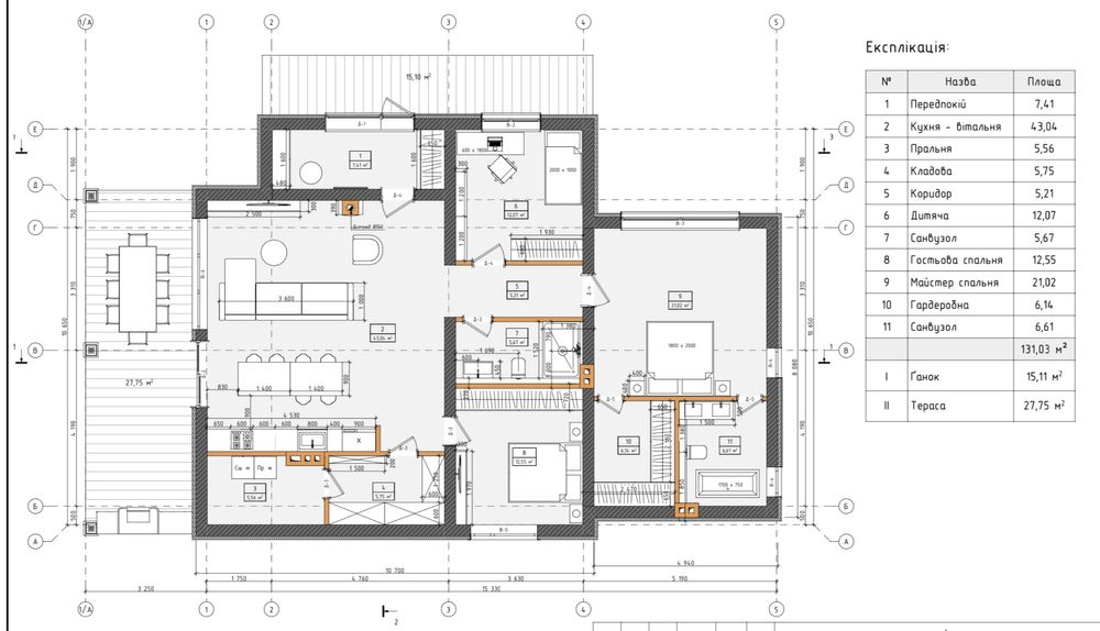
К-ть кімнат: 4
Поверх: 1
Площа: 180 м2
Земельна ділянка: 8 сот
оновлено: 14:28
Будинок 136м2 + терраса 40м2 +сарай/котельня 15м2; Будинок від власника. Можливе розтермінування. Світлий і просторий одноповерховий будинок у скандинавському стилі, збудований у 2025 році. Знаходиться в тихому місці біля лісу(перша лінія), всього 20 км від м. Житомирська (Київ). Зовнішній вигляд даного будинку буде актуальним ще 20-30 років і тому це хороша інвестиція для майбутніх власників Основне: • Площа будинку — 136 м² • Тераса з дерева — 30 м², накрита, з підсвіткою • Окремо збудовано котельню/ сарай — 15 м² • Ділянка — 8 соток (0.08 га), з великим заїздом і місцем на 2-3 авто • Паркан з євроблоку, обшитий металом (ранчо) • Автоматичні відкатні WiFi-ворота + калитка • Асфальтований під’їзд, електрика 3 фази, 25 кВт Комунікації: • Свердловина • Септик — 2 переливних колодязі по 7 м³ •Рекуперація повітря в будинку •Електрика та водопостачання в будинку •Вивід для зарядки авто Будинок: • Стіни — піноблок 300 мм • Утеплення: 100 мм мінеральна вата + 100 мм пінополістирол • Дах — утеплений ватою Knauf 200 мм • Фундамент — стрічковий + монолітна плита 150 мм • Панорамні алюмінієві вікна, енергозберігаючі • Фасад: натуральний камінь + вентильований фасад оздоблений термо ясенем • Освітлення тераси, сходів і порогу Будинок збудований по індивідуальному проекту . Є фото та відео всіх прихованих робіт. Будинок збудований з любов’ю та розумом — Телефонуйте, покажемо все на місці! 50******39, 30.0763657 Будинок від власника