продам квартира

Київська область Вишгородський район,  місто Вишгород
Показати на карті
78'000 USD
1054 за м2
Код: 885460311
Поверх: 17 із 24
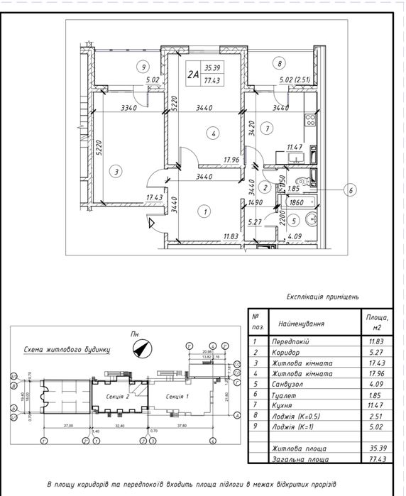
Площа: 74 м2
Кухня: 12 м2
Ванні кімнати: 1
оновлено: 01:57
Продаю двух кімнатну квартиру Вишгород, ВЛАСНИК; Продається власна 2к. квартира в новобудові, по вул. Кургузова, 11 Г. На 17/24 поверх. будинку. Заг. площа 78 м. кв. ( кухня- 12 ; кімнати- 17,5; 18,00 ) Квартира гарного планування, зі всіма необхідними меблями, вмонтованою кухнею і технікою для комфортного життя. Ванна і туалет роздільні - пральна машина, бойлер. Квартира тепла, що не потребує включення опалення зимою ( є лічильники тепла). Балкон засклений, другий не засклений! Інфраструктура близько , до центру Вишгорода 5 хв., прямі маршрутки від комплексу до м. Героїв Дніпра, Почайна. Квартира власна, приватизована! Будинок облаштований генератором, подача води, тепла та роботи ліфтів забезпечено!