продам квартира
| Код: |
883193987
|
| Поверх: |
22 із 23
|
| Площа: |
178 м2
|
| Кухня: |
50 м2
|
| Ванні кімнати: |
3
|
| оновлено: |
5 лютого
|
Шевченківський; Ексклюзивний пентхаус в ЖК Creator City 178м2 з терасою на даху 76м2; Продам ексклюзивний пентхаус в будинку №2 в ЖК бізнес класу Creator City за переуступкою. Запланована здача в експлуатацію - кінець 2025 року (фактично варто орієнтуватись на 1 квартал 2026 року). Наразі будівельники проводять фасадні роботи.
Ця пропозиція підійде як під власну вишукану резиденцію, так і для бізнесу, якщо поділити на декілька окремих апартаментів.
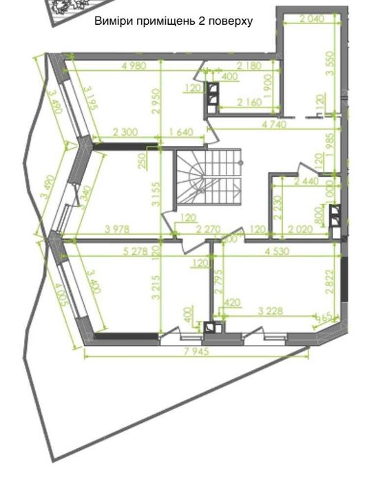
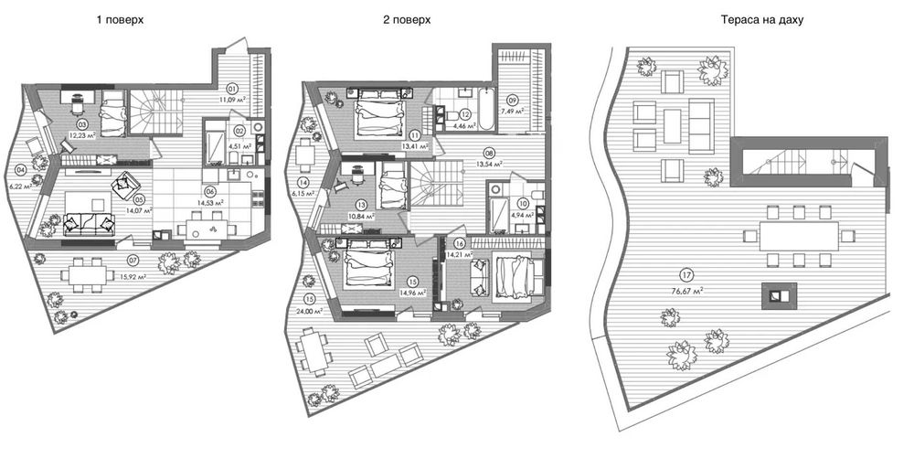
Загальна площа 177,96 м2:
1-ий поверх - 63,08 м2
2-ий поверх - 92,89 м2
Тераса на даху - 21,99 м2 (76,67 м2 за коефіцієнтом 0,3)
На першому поверсі:
- кухня-вітальня з виходом на терасу;
- гостьовий санвузол;
- гостьова кімната з балконом.
На другому поверсі:
- 2 спальні з виходом на терасу;
- кабінет з виходом на балкон;
- майстер-спальня з власним санвузлом;
- спільний санвузол;
- великий гардероб.
На даху розташована велика тераса з панорамним видом - на зоопарк та парк ім. Багряного, який не буде перекрито новою забудовою. Вікна виходять на південно-західну сторону, тому завжди буде достатньо світла й тепла.
Висота стелі - 3.2м.
Про ЖК:
- Лоббі на першому поверсі
- Центральне кондиціонування LG
- 4 ліфта Kone з спуском в 2-рівневий підземний паркінг
- Система безпеки Ajax від забудовника
- Двір без автомобілів
- Закрита територія
- Спорткомплекс з басейном
- Комерційні приміщення
- Спільна експлуатована тераса для мешканців будинку на даху нижчої 7-ми поверхової секції
- Вже відкрились в першому будинку ПриватБанк і Rozetka
Звертайтесь за телефоном або в телеграм; відповім на всі питання, тому що я є власником. Розгляну різні варіанти оплати від готівки до криптовалюти.