продам будинок

Київська область Вишгородський район,  село Осещина
Показати на карті
39'000 USD
354 за м2
Код: 875850717
Кадастровий номер: 3221888800:38:140:7156
К-ть кімнат: 3
Поверх: 1
Площа: 110 м2
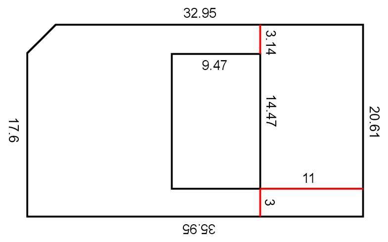
Земельна ділянка: 7.36 сот
оновлено: 17 березня
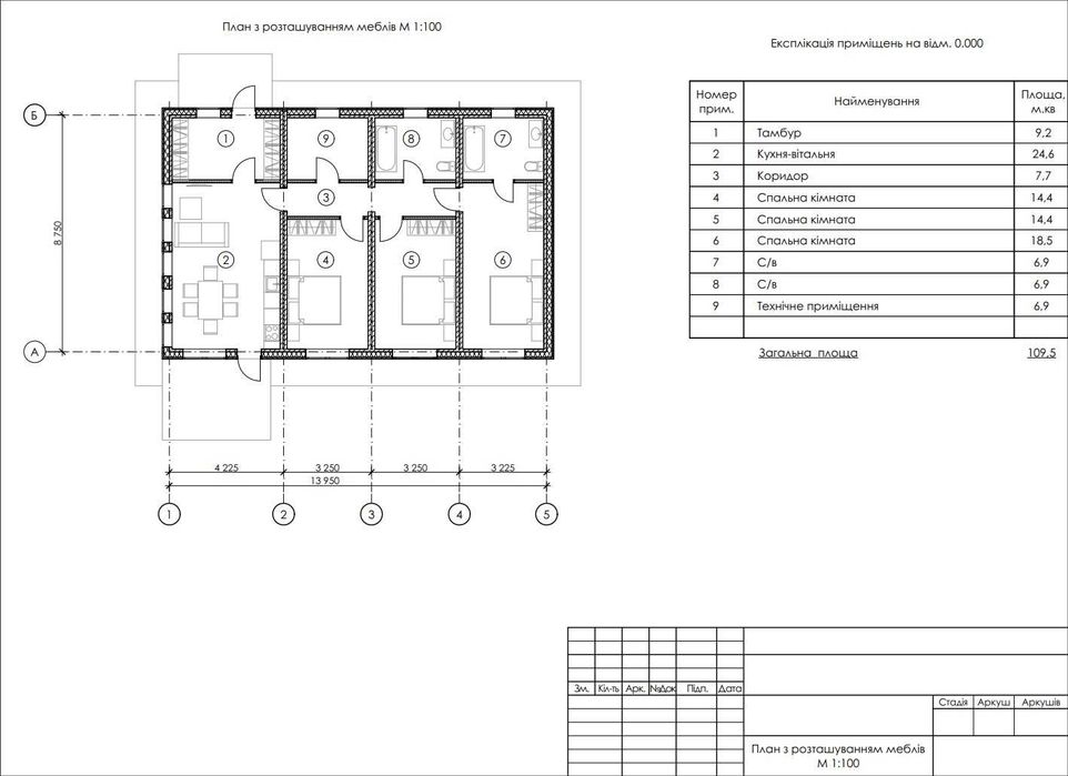
Продаж ділянки з недобудованим будинком в КМ Міжріччя, с. Хотянівка; Продається земельна ділянка з недобудованим приватним будинком у Котеджному містечку “Міжріччя” (с. Хотянівка). Орієнтовна вартість добудови “коробки”: $15 тис. Ділянка: площа 7.36 соток. Цільове призначення – для індивідуального садівництва. Оформлене право власності на підставі договору купівлі-продажу. Фундамент: монолітна плита. Площа 132 м-кв. Без підвалу. Будинок: одноповерховий, загальною площею 110 м-кв, що включає: - три спальні, кожна площею 15 м-кв; - кухню-вітальню площею 25 м-кв; - два санвузла, кожний площею 7.5 м-кв; - технічне приміщення площею 7.5 м-кв; - вхідний тамбур площею 10 м-кв. Перша черга будинку побудована за модульною технологією. Модулі виконані у вигляді сендвіч-панелей з бетону та утеплювача (пінопласту) в підлозі та на даху. Наявні модулі складені в три ряди, що утворюють відповідні приміщення завширшки 3м та не потребують додаткового облаштування даху. Друга черга будівництва за планом включає добудову четвертого ряду завширшки 4м з використанням газоблоку для стін та монолітних бетонних перекриттів для підлоги та даху, а також зведення фасадних стін з газоблоку для модульної частини будинку. Підведена електрика з оплаченою потужністю 5 кВт та можливістю збільшення потужності. Також є можливість підведення газу, підключення швидкісного інтернету та замовлення послуги охорони території. На території котеджного містечка діє сучасна пропускна система з можливістю генерації гостьових перепусток. Обслуговуюча організація містечка також надає широкий перелік інших послуг, як то організація освітлення, ремонту доріг, прибирання та вивозу сміття, прибирання снігу, покосу газонів, охорони містечка та інше. На території містечка є продуктові та будівельні магазини, проводяться ярмарки та свята. Діють школа та садочок, дитячі та спортивні майданчики, включаючи футбольне поле. Також є водойми з пляжами та вихід до річки Десна з парковою зоною. Повна адреса: Київська область, Вишгородський район, село Хотянівка, вул. Сунична 65.