продам квартира
Одеська область , місто Одеса
| Код: |
843119889
|
| Поверх: |
3 із 3
|
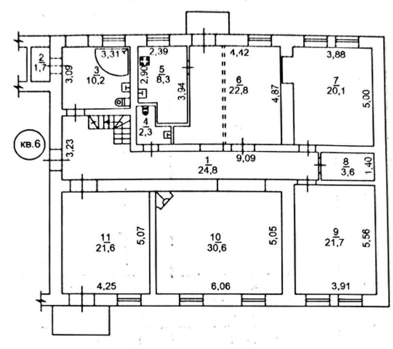
| Площа: |
350 м2
|
| Кухня: |
10 м2
|
| оновлено: |
9 січня
|
Приморський; продам квартиру 338м с арендатором; квартира от хозяина в элитном районе: Малая Арнаутская угол Белинского. Парк Шевченко 5 мин. Море 10-15 мин пешком. исторический дом. Памятник архитектуры. 3 этаж и пентхаус. Двухэтажная квартира. Полы паркет. Итальянские двери. Крыша перекрыта. два санузла. джакузи. Отопление эл. котел - индивидуальное. потолки 3м. Двухсторонняя (тихий двор и Малая Арнаутская) Солнечная.1 этаж 169 м.кв. - 5 комнат+кладовая, кухня, два санузла. Два балкона. Второй этаж 180 м.кв. по факту и 169 м.кв. по техпаспорту - открытое пространство. (под отделку ) Все документы в порядке. Приличные соседи в парадной (3 соседа на 3 этажа) Коммерческая парадная. Перед парадной парковочный карман. цена 1200уе за метр кв.