продам будинок

Закарпатська область Ужгородський район,  село Барвінок
Показати на карті
54'000 EUR
181 за м2
Код: 854900196
К-ть кімнат: 8
Поверх: 300
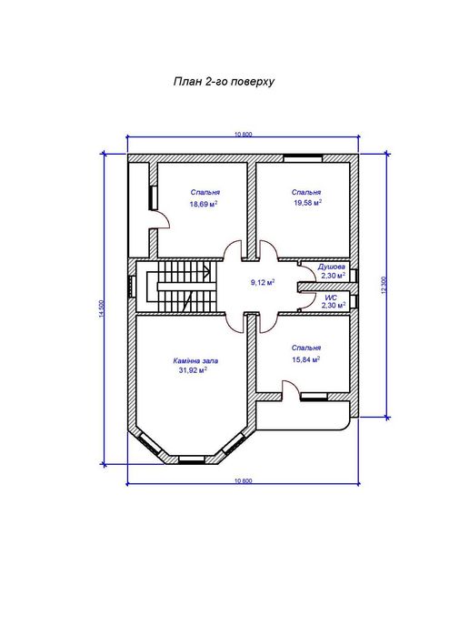
Площа: 298 м2
Земельна ділянка: 15 сот
оновлено: 14 березня
Продається будинок с.Барвінок, Ужгородський р-н; Будинок розташований на межі Ужгорода - с.Барвінок. Земельна ділянка 15 соток. Гарне, тихе місце поряд із лісом. Цокольний поверх + 2 поверхи, 298 м2 загальна, 160 м2 житлова + хол. Газ на ділянці, електрика в будинку, центральний водопровід та каналізація на вулиці. Всередині стіни – біла, зовні сіра обробка, є паркет для першого поверху. Дерев'яні вікна, двері. На ділянці садок, виноградник. Google map: 48.56418861009*********36166*****69764 торг; кадастровий номер: 2124880300 : 12 : 0 1 1 : 0221