Aрхів - оголошення нерухомості не активне. Оновлено 17 травня

схожі активні оголошення за лінком:
продам землю

продам земля

Київська область Рокитнянський район,  село Савинці
Показати на карті
23'000 USD
23000 за м2
УкрХата - оголошення нерухомості.
Код: 877992487
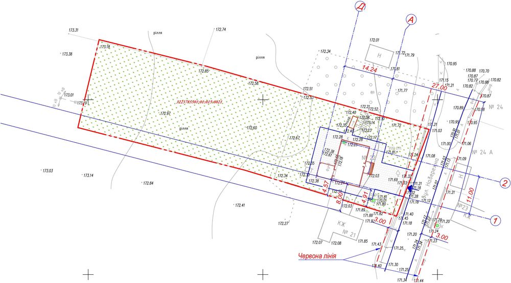
Кадастровий номер: 3223785501:01:015:0021
Земельна ділянка: 25 сот
Цільове призначення: інше
оновлено: 17 травня
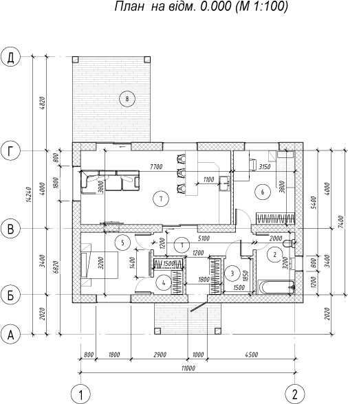
Земля, ** соток, під забудову. Київська обл.; Земля, ** соток, під забудову. Київська обл., Рокитнянський р-н, село Савинці (** км від м. Києва), все приватизоване, документи в порядку. На ділянці була столітня хата – прибрали та впорядкували територію, зробили паркан. Є криниця, погріб, електрика * кВт, скважина **м, насос. Розпочали будівельні роботи, а саме – зробили геодезичну розбивку ділянки, виконали геологічне дослідження ґрунтів, замовили проект під забудову (на малюнку саме проектне рішення), виконали погодження з ДАБІ та отримали будівельний паспорт «Нове будівництво індивідуального садибного житлового будинку», ще й фундамент залили. Отже, продається земля, погоджений проект житлового будинку та сам об’єкт незавершеного будівництва.