продам будинок

Київська область Києво-Святошинський район,  село Ходосівка
Показати на карті
85'000 USD
772 за м2
Код: 854890777
К-ть кімнат: 5
Поверх: 2
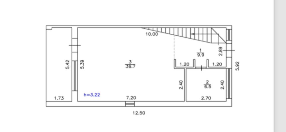
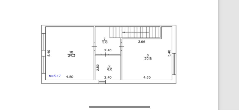
Площа: 110 м2
Земельна ділянка: 5 сот
оновлено: 11:54
Срочная продажа!Дуплекс Ходосівка!; Продаж дуплекса в с. Ходосівка! Обʼєкт розташований в 500 метрах від Мега Маркету , Мануфактури. В 100 метрах знаходиться школа, ресторан та дитячий садок. Дуже зручне місцезнаходження, територія під охороною та вʼїзд здійснюється через шлагбаум. Окрема територія 15 соток (огороджена територія). На ділянці знаходяться 3 окремих дуплекса, 7 квартирних блоки. Загальна площа 1го квартирного блоку - 110 м кв. Кожен блок має 2,5 сотих землі ( тераса та задній двір), місця для паркування розраховані на 2 авто. Додаткові характеристики: 1 Будинок побудований з червоного кирпичу та утеплений мінеральною ватою. 2 Всі використані матеріали є екологічними. 3 Власний септик на кожен квартирний блок. 4 Вода - скважина 5 Електроенергія 12 кіловат ( при необхідності можливо збільшити напругу). Дублекси побудовані для комфортного, здорового та щасливого життя. Всі додаткові питання за номером