продам будинок

Дніпропетровська область ,  місто Кривий Ріг
Показати на карті
140'000 USD
619 за м2
Код: 878567688
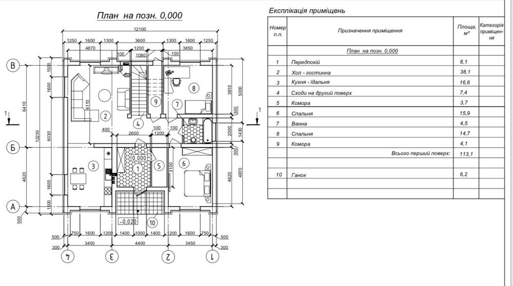
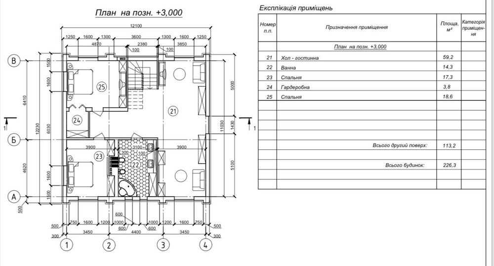
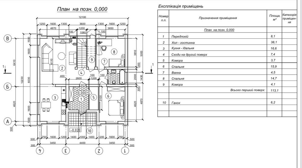
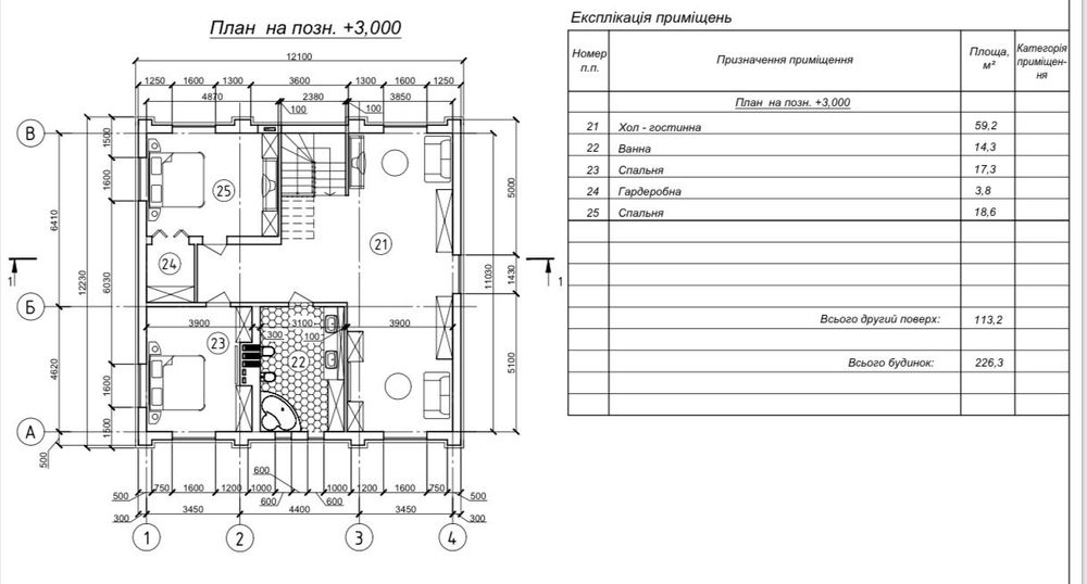
К-ть кімнат: 5
Поверх: 2
Площа: 226 м2
Земельна ділянка: 5.5 сот
оновлено: 5 жовтня
Центрально-Міський; VIP будинок в центре города! Закрытый комплекс на 4 эксклюзивных дома!; Единственный эксклюзивный проект в городе! Центр, улица Черняховского. Четыре отдельных дома, со своей территорией. Все дома проданы, остался один. Дружелюбные соседи). Рядом: парк, театр «Шевченко», проспект Почтовый, рынок, спортивный комплекс «Форест», школа, садик, супермаркеты. Улица Черняховского - респектабельная улица нашего города с элитными домами и жильцами. Дом построен в 2024-2025 год, под чистовую отделку. Площадь: 226 кв метров, два этажа. Участок 5,5 соток. Количество комнат 5. Санузел - 2. Автоматические ворота (Возможно установка бассейна / фото) Просторные комнаты Современная планировка кухни столовой Окна в пол Большая парковка для 4 авто Заведен свет Вода Септик (2- зонный) Возможно разделения дома на ДВЕ СЕМЬИ (имеет два отдельных входа), первый и второй этаж могут быть автономны. Построен дом по энергоэффективной технологии, утеплен экологически чистыми материалами: минеральной ватой, утеплена крыша 200 мм. Окна: премиум - бренд kommerling, стеклопакеты двухкамерные с функцией энергосбережения и солнцезащитны. Теплый пол на два этажа , электрический котел (работает по wi-fi), бойлер, насос. В доме частично начат чистовой ремонт: сделан санузел на первом этаже и комната. Установлены электрические котлы, насос, бойлер, проведена проводка, положена плитка на кухне, частично по первому этажу.