продам будинок
Київська область Бориспільський район, село Петропавлівське (Петровське)
Показати на карті
| Код: |
873885497
|
| Кадастровий номер: |
3220881300:03:001:0188
|
| К-ть кімнат: |
6
|
| Поверх: |
2
|
| Площа: |
220 м2
|
| Земельна ділянка: |
8 сот
|
| оновлено: |
22 квітня
|
Готовий будинок 220м² в КМ Вишневий Хуторок 6км від Києва від власника; Передамо в хороші руки будинок проекту «Барселона» загальною площею 220 м2, розташований на ділянці 0,808 Га, що знаходиться в котеджному містечку «Вишнвий хуторок» (5-та черга забудови). Забудовник – «ЄВРОДІМ». Котеджне містечко має розвинену інфраструктуру, на території містечка знаходяться дитячий майданчик, футбольне поле, спорт майданчик. Всі дороги на території містечка, в тому числі під’їзд до будинку, асфальтовані.
ХАРАКТЕРИСТИКИ БУДИНКУ
• Стіни з газоблоку
• Утеплення пінополістиролом
• Завершені фасадні роботи
• Водостоки
• Двокамерні склопакети
• Дах з бітумної черепиці
• Вхідні двері
• Паркан навколо ділянки
• Відмостка навколо будинку
КОМУНІКАЦІЇ
• Дренажний септик
• Централізоване водопостачання
• Заведене електропостачання 12кВт
• Внутрішні дороги у котеджному містечку
• Вуличне освітлення в котеджному містечку
• Охорона в котеджному містечку
ДЕТАЛЬНИЙ ОПИС БУДИНКУ
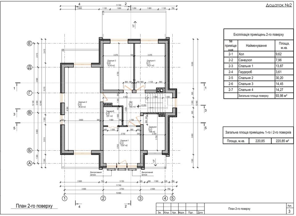
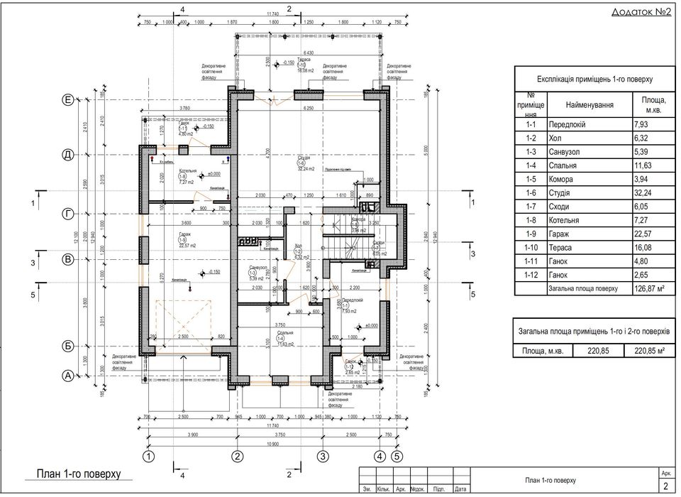
Загальна площа будинку 220,85 м2, що складається з:
1й Поверх:
1. Передпокій 7,93 м
2. Хол 6,32 м
3. Санвузол 5,39 м
4. Кімната 11,63 м
5. Комора 3,94
6. Студія+кухня 32,24 м
7. Сходи 6,05 м
8. Котельня 7,27 м
9. Гараж 22,57 м
10. Тераса 16,08 м
2й Поверх:
1. Хол 9,62 м.
2. Санвузол 7,96 м
3. Спальня-1 13,87 м
4. Гардероб 3,61 м
5. Спальня-2 із гардероб та окремим санвузлом 30,20 м
6. Спальня-3 14,45 м.
7. Спальня-4 14,27 м.
ДОДАТКОВА ІНФОРМАЦІЯ
Будинок продається вже з готовим розробленим дизайн-проектом інтер’єру, згідно якого в будинку запроектовані на першому поверсі передпокій, кабінет, який також може бути гостьовою спальнею, гостьовий санвузол, затишна та простора зала із кухнею з виходом на терасу. В залі також встановлений камін, що завдяки своїй конструкції може працювати на обігрів першого поверху. На другому поверсі запроектовані простора спальня з власним гардеробом та санвузлом, загальний санвузол на поверсі, дві дитячі спальні, домашній кінотеатр, що також може служити як гостьова спальня, гардероб.
У відповідності до дизайн-проекту в будинку вже виконано:
1. Монтаж системи опалення;
2. Монтаж системи водопостачання та водовідведення;
3. Монтаж траси для підключення кондиціонерів;
4. Чистова машинна стяжка підлоги.
В ціну будинку також включені: радіатори опалення, системи інсталяції для унітазів, змішувачі та кнопки зливу чорного кольору відповідно до дизайн-проекту.
Для більш детальної консультації та запису на перегляд пишіть або телефонуйте за номером:
09******62 Вікторія
Або пишіть на будь-який менеджер Telegram/WhatsApp/Viber надішлю відеоогляд.
Досить вже відкладати мрію про власний будинок на потім!