продам квартира

Київська область Києво-Святошинський район,  село Гнатівка
Показати на карті
63'000 USD
605 за м2
Код: 856862893
Поверх: 3 із 4
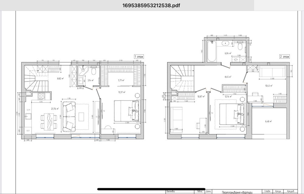
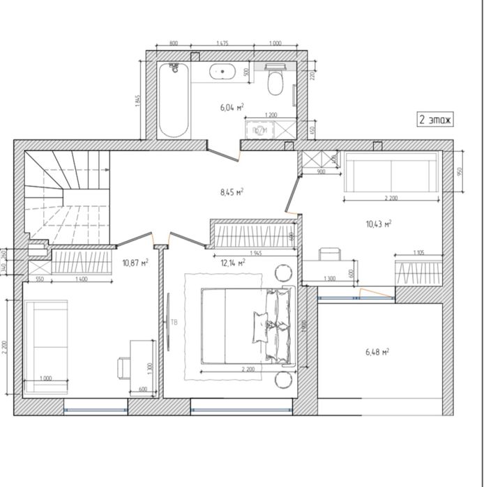
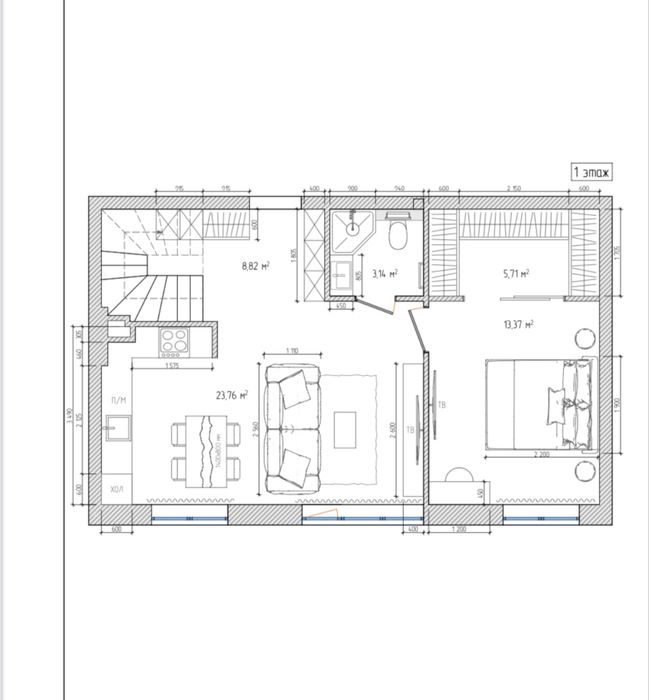
Площа: 104 м2
Кухня: 23.76 м2
Ванні кімнати: 3
оновлено: 06:19
4-кімнатна дворівнева квартира Білогородка City Lake; Дворівнева квартира 104 кв в клубному домі з ліфтом та власною терасою в закритому ЖК Білий шоколад City lake. Газове опалення. 1 поверх: санвузол, спальня, кухня. 2 поверх: 3 окремих спалі, санвузол, тераса В квартирі зроблена розводка опалення і тепла підлога в санвузлах, кухні, коридорі. Готовий проєкт розведення комунікацій. Здача будинку в експлуатацію - кінець цього (2025) року. Додаткові фото і відео у приватні повідомлення.