продам будинок

Кіровоградська область Новгородківський район,  смт Новгородка
Показати на карті
80'000 USD
536 за м2
Код: 849389357
К-ть кімнат: 5
Поверх: 2
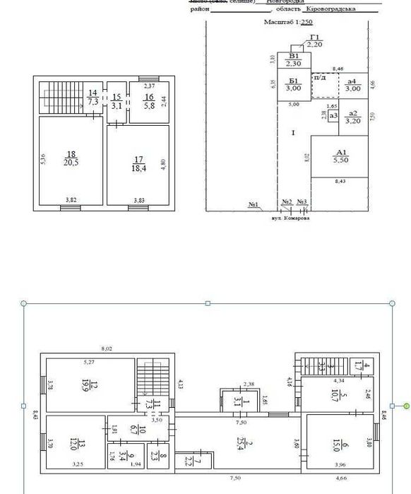
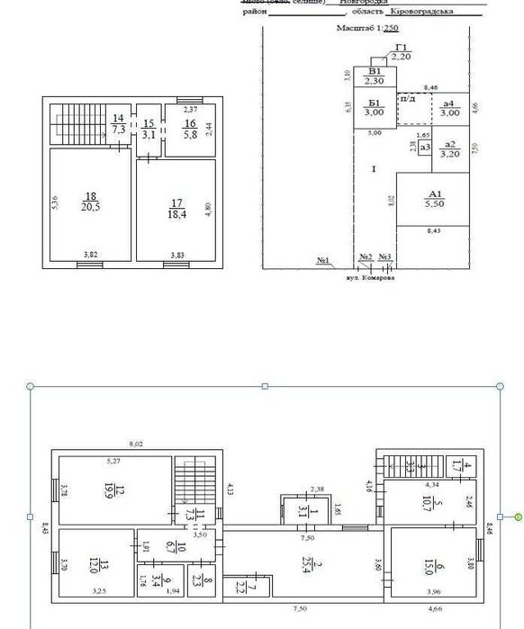
Площа: 149 м2
Земельна ділянка: 30 сот
оновлено: 06:03
Продаж будинку Новгородка (Кам,янець) Кіровоградська обл.; Продам двоповерховий житловий будинок в сел. Кам'янець (раніше- смт. Новгородка) у Кіровоградській обл. До Кропивницького - 40 км., селище у тихомі місці, до будинку веде асфальтована дорога - 500 м. від траси Кривий Ріг - Кропивницький. На питання відповідаю за вказаним в оголошенні телефоном. Стан - житловий. Розглядаються варіанти продажу за державними програмами. ТОРГ умісний завжди. Все, що на фото - залишається новому власникові + оздоблення вікон + 2 кондиціонера + працюючи системи відеоспостереження та охорони (охоронне обладнання АЯКС). Будинок під цілодобовою охороною ДСУ. Будинок приєднано до загального водогону, а також забезпечено капітальною скважиною з питною водою (водяний насос розташований в капітальному підземному приміщенні, з розводкою води по ділянці, + капітальна колонка з колодязем оздобленим цеглою, безпосередньо на ділянці огороду), 2 зливні ями, одна з яких призначена для кухонної зони, інша - для ванни та туалету, дах утеплений та залитий стяжкою по всьому периметру, двір вимощений бруківкою. Приватизована земельна ділянка 30 сот., на якій капітальна альтанка, сад, огород, плодові дерева, виноградник, багато декоративних рослин та квітів, великий вольер для собак. Будинок містить багато площі для розміщення сонячних панелей для забезпечення автономного електроспоживання, що в наші часі є актуальним. І може бути переведений на електроопалення, для цього було встановлено електрокотел. Наразі будинок на газовому опаленні. Котел новий, придбаний у 2019 році фірми Валіант. В 2019 році була повністю замінена система опалення, яка працює на відмінно.; кадастровий номер: 00000000000000000000000000