продам квартира

Львівська область Пустомитівський район,  село Сокільники
Показати на карті
300'000 USD
1960 за м2
Код: 847996368
Поверх: 3 із 3
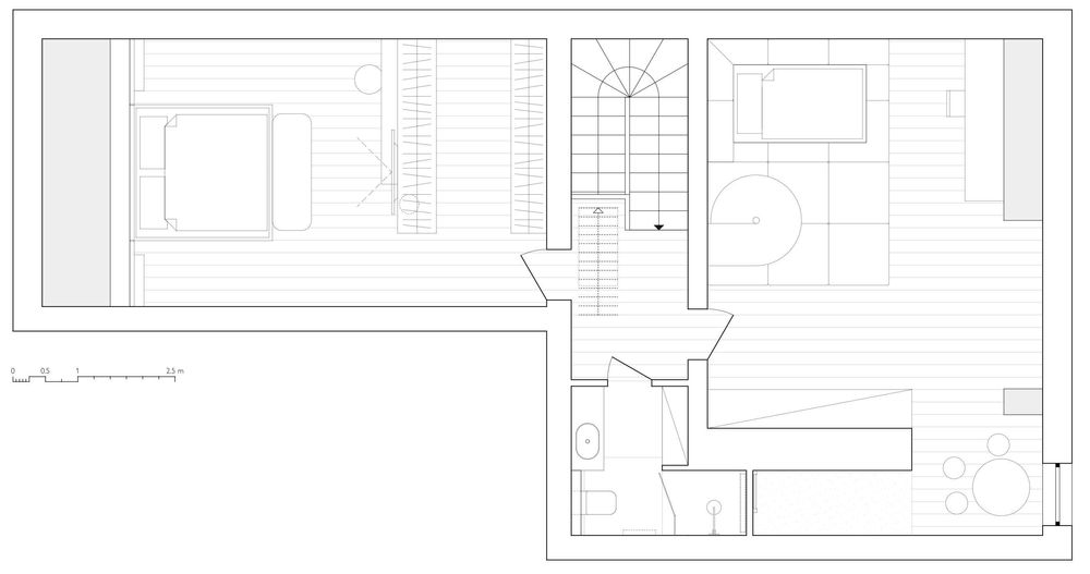
Площа: 153 м2
Кухня: 13.1 м2
оновлено: 3 листопада
Продаж затишної 2-рівневої в ЖК "Данбуд"; Продам 2-рівневу квартиру з горищем в ЖК закритого типу Сокільники (заїзд з Трускавецької) Площа: 153 м² + 42 м² горище Додатково: окремо можна придбати гараж 25 м² Будинок клубного типу закрита територія, відеоспостереження, безпечний двір Особливості квартири -Вентиляція з рекуперацією Systemair -Система помякшення та очищення води -розумний дім (HomeAssist) керування опаленням, кондиціонуванням, сигналізацієюAjax -Резервне живлення та акумулятори квартира повністю функціонує навіть при відключення -Інтернет (оптоволокно) Цікаві деталі Окрема кімната кабінет+домашній кінотеатр 2в1, де шумоізоляція, професійна акустика, проєктор, великий широкий диван У квартирі велика дитяча з ігровою, спальнею та навчальною зонами, з можливістю додати місця для сну. Окремо облаштована господарська кімната Локація та інфраструктура -Відеоспостереження на поверсі та по периметру -Район озера Dark Lake -1хв пішки до Рукавички, аптека 3і та кафе -7 хв на авто до ТРЦ Вікторія Гарденс, 10 хв до Ашану, 5 хв до обїзної -Приватні школи та садки в пішій доступності: GlobalKids, Школа Вільних та Небайдужих, PIPL Lyceum та інші Важливо: через велику кількість спаму прохання писати у месенджерах (WhatsApp, Telegram, Viber, Signal).