продам квартира
Київська область Києво-Святошинський район, село Святопетрівське (Петрівське)
Показати на карті
| Код: |
847162166
|
| Поверх: |
10 із 10
|
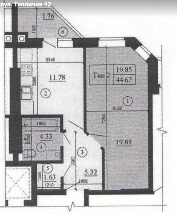
| Площа: |
44.67 м2
|
| Кухня: |
11.78 м2
|
| Ванні кімнати: |
2
|
| оновлено: |
23 травня
|
Квартира 44м2 Святопетрівське 7км до Києва. Можно жити; Під чистовий ремонт. Стіни поштукатурені, пол з стяжкою. Електрика розведена. Є світло, вода, інтернет. Тарифи житлові. Залишилось поклеїти обої, покласти плитку і можно жити. Інша частина будинку введена в експлуатацію. Наш під'їзд ще не введено в експлуатацію але наполовину вже заселеий. Люди живуть давно.
В дворі дитячі площадки, Фора, дитячий садок
Без рієлторських комісій. Переуступка десь 16800грн. Власник я.
Адреса:
Київ обл, с. Святопетрівське, вул. Теплична, 42 (була вул. Червоного Пахаря, 2в)
Дзвоніть - домовимось.