продам будинок
Одеська область , місто Одеса
| Код: |
846144312
|
| К-ть кімнат: |
4
|
| Поверх: |
2
|
| Площа: |
109 м2
|
| Земельна ділянка: |
2 сот
|
| оновлено: |
7 березня
|
Київський; Дуплекс від власника по спец.ціні; У продажі дуплекси від забудовника.
Спеціальна пропозиція, вигідні умови розтермінування.
2хв. на авто від Совіньйону 3
5хв. до пляжу
Вид моря.
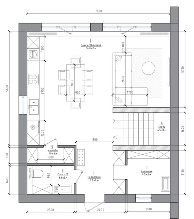
Площа дуплексу : 109м.Кв.
Ділянка : 2 сотки.
•Фундамент - монолітна плита.
•Стіни - газоблок 400 мм. непотребуючі утеплення.
•Монолітне перекриття між поверхами.
•Плоский эксплуатований дах.
•Система зливу в каналізацію.
•Коммунікації заведені в будинок :
* Електрика 380V (лічильник день/ніч.)
* Вода (лічильник віддаленої передачі показників)
* Каналізація
* Оптико-волоконний інтернет
* Вентиляція
Каналізація з водопостачанням розведена по будинку та на других поверх.
•Ремонт - від забудовника.
•Вікна - енергозберігаючі 2х камерні
•Фасад декорований гнучкою керамикою.
•Паркан фундаментальный - облицювальний кирпіч + жалюзі (за бажанням)
•Ворота відкатні на електриці
•Двір - тротуарна плитка, парковка на 2 авто, хоз. зона с інвентарною кладовою, тераса 23м.Кв.
Можна під ваш запит скорегувати «комплектацію»
Є можливість розрахуватися криптовалютою.
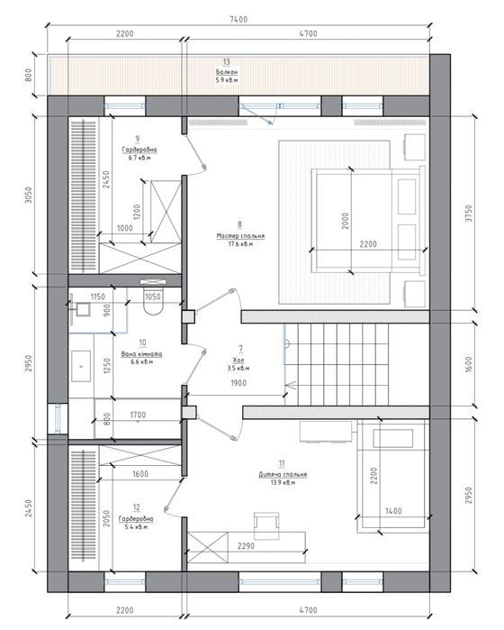
Планування будинку :
•Перший поверх - гостьовий санвузол, котельня, гардеробна, кухня/вітальня з виходом на терасу заднього двору.
•Другий поверх - ванна кімната, майстер-спальня з виходом на балкон та великою гардеробною, дитяча/спальня з гардеробною.
Дуже зручне та продумане планування яке входить в вартість, та ми можемо залишити вам вибір і ставити перестінки узгодивши з Вами.
Будуємо з якісних матеріалів по сучасним технологіям.
Ергономічно, відповідально - ви будете задоволені.
На всі запитання відповідаємо по телефону або в любому месенджері. До зустрічі на перегляді !