продам квартира
Харківська область , місто Харків
| Код: |
835656023
|
| Поверх: |
19 із 20
|
| Площа: |
145 м2
|
| Кухня: |
30 м2
|
| оновлено: |
13 грудня
|
Шевченківський ; ЖК Павловский квартал, 4-х ком. 2-х уровневая 145м.кв; В продаже своя 2-х уровневая 4-х комнатная квартира, расположенная в секции №7 ЖК
Павловский Квартал, ул. Сухумская, 22, центр города (м.
Научная, м. Госпром).
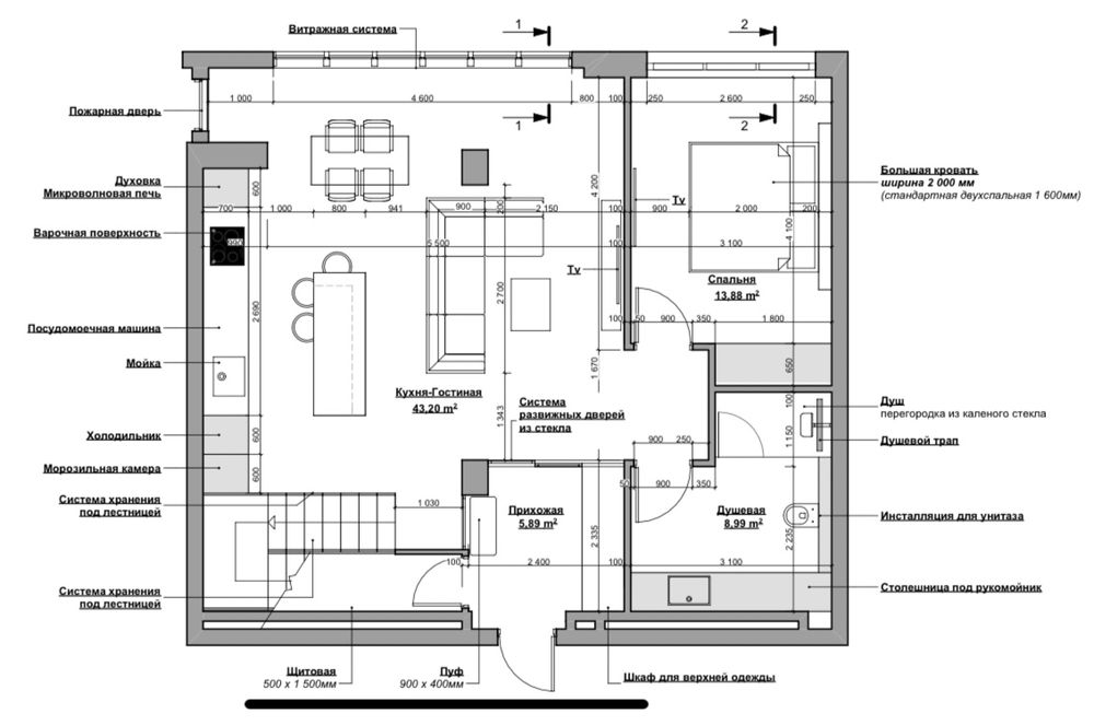
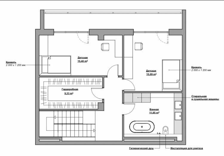
Квартира расположена на 19-20 этажах, общая площадь - 145 кв.м.
На этапе строительства сделана перепланировка под комфортное проживания семьи с двумя детьми на 4 спальни:
1-й этаж: кухня-гостиная, спальня, санузел;
2-й этаж: 2 детские спальни, гардеробная и ванная комната. Квартира в строительном состоянии. Переоформление по переуступке. Звоните, спрашивайте, всегда договоримся.