продам квартира

Дніпропетровська область ,  місто Дніпро (Дніпропетровськ)
Показати на карті
70'000 USD
1088 за м2
Код: 833532216
Поверх: 4 із 10
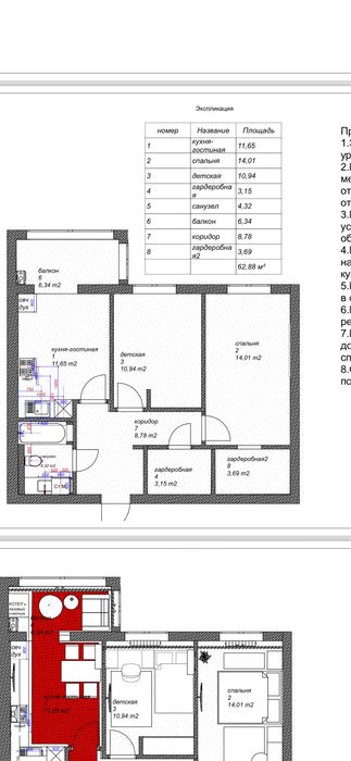
Площа: 64.3 м2
Кухня: 18 м2
оновлено: 30 березня
Шевченківський; Власник. Продаж кв в новобудові з частк-м ремонтм ЖК Щасливий у Дніпрі; Квартира новобудова, на продаж. Поруч вул. Гагаріна, Макдональдс, ТЦ Даффі. Вікна в сторону шоссе. Жк під цілодобовою охороною, відеоспостереження. Є дитячий майданчик, є спортмайданчик. 4 етаж, 64,3м2 Більшість чорнових робіт виконано. -зроблені перегородки з утеплювачем і звукоізоляцією. -Стяжка з утеплювачем -зроблені комунікації під сантехніку, встановлена інсталяція -тепла підлога, батареї в кімнатах. -проведені комунікації під кондиціонер -проведена електрика, интернет в кожну кімнату, кухню -утеплена лоджія. -вивід комунікацій під домофон -стіни оштукатерені, частково відшпакльовані. -встановлені вхідні двері з італійськими замками та інше. газ, світло, вода все є.. опалення працює. Робилось для себе з високоякісного матеріалу. Адреса: Запорізьке Шоссе 32а Пропозиція від власника. Право власності.