продам квартира
Дніпропетровська область Дніпровський район, смт Слобожанське (Ювілейне)
Показати на карті
| Код: |
828875795
|
| Поверх: |
10 із 15
|
| Площа: |
80 м2
|
| Кухня: |
10.1 м2
|
| Ванні кімнати: |
2
|
| оновлено: |
18 березня
|
Від Власника: 80 кв.м. Квартира з ремонтом+парковка, ЖК Олімпік; Квартира 80 кв.м. + ваше паркувальне місце на закритій території з охороною та камерами + комора
---
Продам свою квартиру 80 кв.м., у власності більше 3 років.
Квартира розташована на 10/15 поверсі в житловому комплексі бізнес класу.
Є своє паркомісце, комора обладнана стелажною системою.
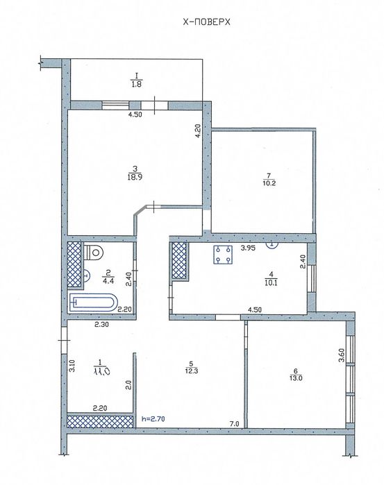
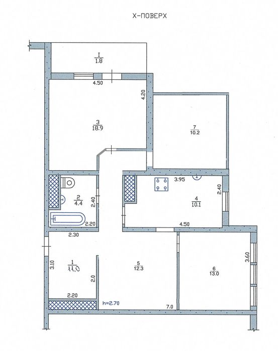
Індивідуальне планування. Квартира складається з таких приміщень: спальня з балконом, дитяча кімната, кімната під вільне планування (друга дитяча, кабінет тощо) з панорамними вікнами з видом на парк, вітальня, ванна кімната, кухня, відокремлена простора вхідна зона.
Помешкання дуже тепле взимку та прохолодне влітку, навіть в порівнянні з іншими квартирами в цьому самому будинку.
Продається з меблями, виготовлені по індивідуальному замовленню чітко за розмірами кімнат (спальня, дитяча, ванна кімната).
Встановлені нові бойлер та кондиціонер.
Міжкімнатні двері бажано під заміну, в ціні враховано.
Будинок оздоблений власною котельнею, двома ліфтами, охороною, відеонаглядом.
Автоматична протипожарна система.
Двоє сходів - основні та додаткові евакуаційні.
Закрита територія.
Будинок монолитно-литий бетонний, дуже убезпечений за нинішними часами - ніколи не складеться, як панельки.
Технічне обладнання квартири:
* Вхідний фільтр на воду.
* Регульоване опалення на кожну кімнату.
* В квартиру заведено трифазна напруга, 380 В.
* Можливість підключення трьох провайдерів інтернет.
* Тепла підлога в ванній кімнаті та в прихожій.
* Ергономічне розташування розеток.
Безготівковий розрахунок в грн розглядається в індивідуальному порядку.