продам будинок

Київська область Броварський район,  село Рожівка
Показати на карті
49'500 USD
540 за м2
Код: 823875572
Кадастровий номер: 3221287001:02:005:0002
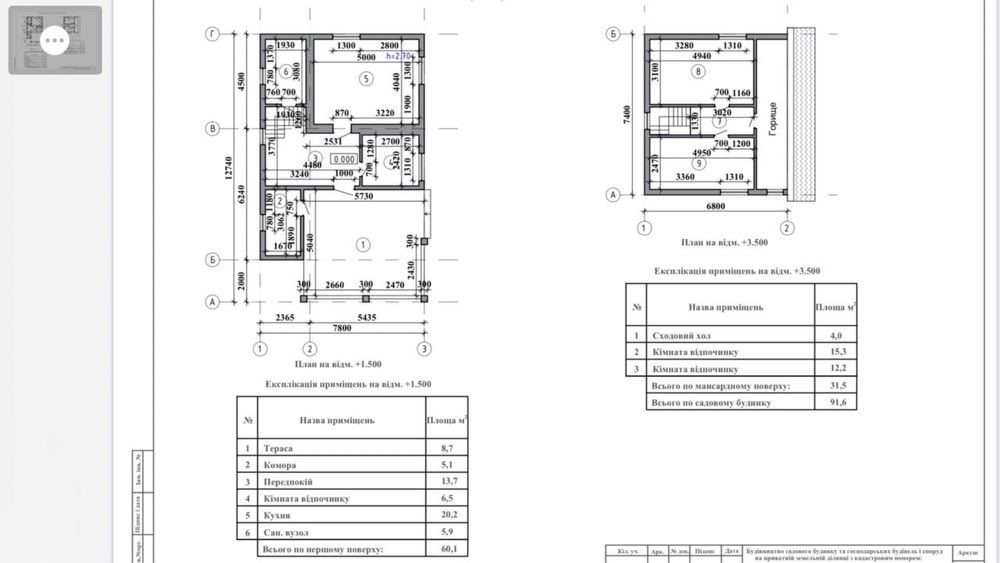
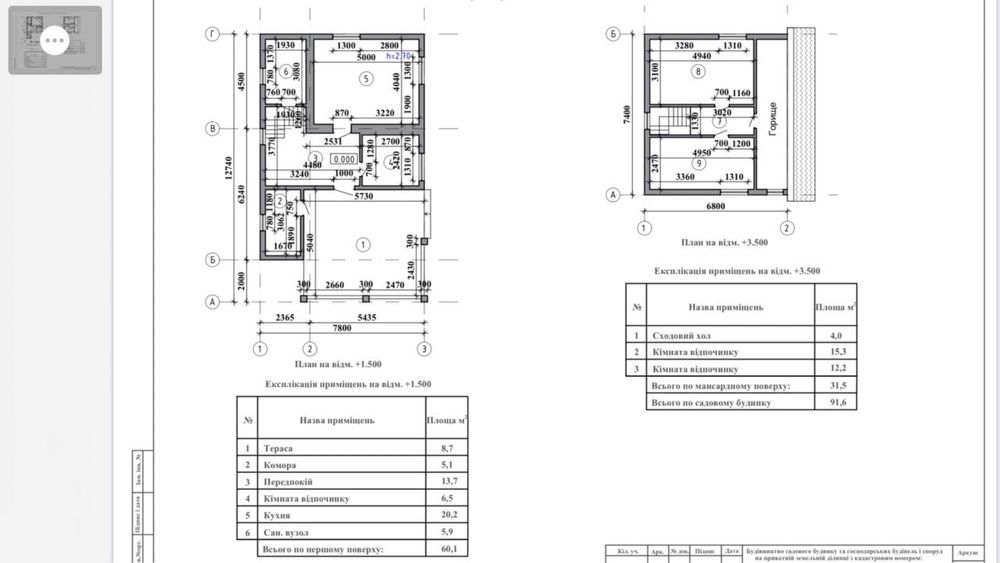
К-ть кімнат: 4
Поверх: 2
Площа: 91.6 м2
Земельна ділянка: 11.2 сот
оновлено: 16 березня
Продам двоповерховий будинок, 20 км від Києва с. Рожівка (СТ Академік); Купляли для себе і робили все на совість для подальшого постійного проживання, але життєві плани змінилися тому продаємо. Саме основне вже зроблене, залишилося трішки доробити в середині ремонт під себе і заходь живи. Нами була: • розчищена територія 11,2 соток. • очищення будинку від непригодних речей попередніх власників, два трактори сміття. • зроблена тепла підлога по всьому першому поверху, встановлений електрокотел. • замінені всі вікна на якісні металопластикові ALM Plast Deluxe зимою не холодно, влітку не жарко, та встановлені відливи, та москітки. • зроблена скважина 30 метрів з усім обладнанням глибинний насос Optima (Польща) і бак Італійський на 100л, розведений полив по території до тераси і по центру ділянки. Також є сезонна вода заведена від центрального каналу на вході зліва, якою можна поливати квіти, дерева, рослини. • обладнана власна котельня в якій котел і електрощиток. • зроблені всі сантехнічні виводи в сан вузлі, кухні та котельні. • замінений лічильник світла - день/ніч фірми Nic, та встановлений більш потужний автомат 32А Legrand. • підведений оптоволоконний швидкісний інтернет Бест лайн, wi-fi, +телебачення. • встановлена охоронна система Ajax підключена до Альфа охорони, плюс є місцева охорона • На ділянці встановлена камера відеоспостереження. По всьому кооперативу теж є камери у сусідів. І ще багато всього навіть не згадаю. Будинок метраж та планування видно на фото, ведений в експлуатацію в 2022 році всі документи в нормі. Ділянка на своєму місці є винос 4 точок і заключення експерта. 0 поверх: • власний погреб холодний з вентиляцією, висота від полу до стелі десь 2,7 м. 1 поверх: • котельня комора 5,1 м2 • хол передпокій 13,7 м2 • кухня-вітальня 20,2 м2 там же є піч яка обігріває дві кімнати. • кімната відпочинку 6,5 м2 • санвузол велика ванна кімната 5,9 м2( інсталяція вже встановлена, зроблений вивід під гігієнічний душ, під пральну та рукомийник (всі труби шитий поліетелен остання новинка в сантехніці) • сходи дерев`яні на другий поверх 4 м2 всього по першому поверху 60,1 м2 2 поверх: • дві великі спальні, може бути дитяча і доросла 15,3 м2 та 12,2 м2 • велика комора (під скосом даху, можна зробити гардеробну) всього по мансардному поверху 31,5 м2 всього по будинку 91,6 м2 а з горищем всі 100м2. висота потолків 2,70 На кухні є можливість підключати безпечно два газових балони до плити (плита старенька є, холодильник, та кухонні меблі є). Також заїзд на територію де розташовані будинки обладнаний автоматичними воротами з двох сторін є пульт і з телефону відчиняються, камерами відеонагляду на вʼїзд та виїзд. Є власна тераса біля 27 м2 де можна проводити сімйні вечори. Територія майже 11,2 соток. На вулиці є хозприміщення і вуличний туалет, та накриття типу бесідки або дроварня, там же мангал. Гарна природа пташки співають. Багато плодових дерев : груша, дві яблуні, черешня рання дуже смачна, дві вишні, ліщина, шовковиця, горіх (три мішки в сезон збирали). Все плодоносить. Всі сусіди адекватні, напроти навіть продають домашні огірки, помідори, полуницю, ожину посезонно, короче кажучи. Також до садів привозять мʼясо, молоко. Є вивіз сміття, є місцева група у якій про все попереджають. Магазин в кооперативі і ще один у сусідньому, чуть далі є будівельний магазин, кавʼярня, АЗС, поштомат нова пошта, та магазин напівфабрикатів, та сад город. Підходить під Є-Оселя для ВПО. (документам 4 роки) За додаткової інформацією - пишіть, дзвоніть. Я власниця з чоловіком по 1/2, не рієлтор.